Shipping and Pilotage Act 1967

Shipping and Pilotage (Ports and Harbours) Regulations 1966

 

Shipping and Pilotage (Ports and Harbours) Regulations 1966

Contents

Part 1  Preliminary

1.Citation1

3.Port Walcott, charges for pilotage at1

4.Terms used2

5A.Ports declared (Act s. 10)4

Part 2  Appointment of harbour masters and deputy harbour masters

5B.Harbour masters and deputy harbour masters, appointment of5

5C.Conditions of appointment5

5D.Duration of appointment6

Part 4  Signals

5.Tides, signals to be displayed at ports about (Sch. 1)7

6.Vessels, signals to be displayed on (Sch. 2)7

7.Dredgers, signals to be displayed on (Sch. 2)7

8.Improper use of signals8

Part 5  Pilotage

Division 1 — Licensing of pilots

9A.Licence required to act as pilot9

9B.Application for licence9

9C.Issue of licence9

9D.Conditions of licence11

9E.Duration of licence12

9F.Renewal of licence, application for12

9G.Renewal of licence13

9H.Suspension and revocation of licence13

9I.Review of decisions by SAT14

9J.Lost etc. licence documents, replacement of15

Division 2 — Requirements relating to pilotage

9.Which vessels require licensed pilot in pilotage area15

10.Boarding and discharging pilot, master’s duties as to16

11.Master to declare draught to pilot17

12.Flag required on pilot boat17

13.Masters of tugs etc. assisting piloted vessel to obey pilot17

14.Vessel movement in pilotage area, restrictions on; when 2 pilots required17

Division 3 — Charges

15.Charge for pilotage (Sch. 3 Div. 1)18

15A.Detaining etc. licensed pilot, charges for20

15B.Launch to run mooring lines, charges for21

15C.Pilot remaining on board, charges for22

Division 4 — Pilotage exemption certificates

16.Who is entitled to certificate22

16A.Who is eligible to attempt r. 16B examination23

16B.Examinations as to knowledge of port etc.24

16C.Certificate of health25

16D.Maximum length of vessel, determining for certificates26

16E.Restrictions and conditions in certificates26

16F.Certificates valid for only Australian crewed vessels27

16G.Use of certificate may be prohibited27

16H.Contents of certificate (Sch. 6)27

16I.Register of certificates28

16J.Pilotage exemption record book for exempt masters (Sch. 6)28

16K.Certificate invalid if not used for one year or more29

16L.Revalidation of certificate invalid under r. 16K29

16M.Cancellation or suspension of certificate29

16N.Appeals against cancellation or suspension30

17.Flag required if no licensed pilot on board30

Part 6 — Conservancy dues

18.Conservancy dues (Sch. 3 Div. 20)32

18A.Gross registered tonnage, determining35

Part 7  Regulation of other matters

Division 1 — General

19.Harbour masters’ powers37

20.Masters’ duties in port38

21.Anchoring etc. in port, masters’ duties as to39

22.Harbour master may order scuttling39

23.Gangways, provision and use of40

24.Watch keeping etc. requirements in port41

25.Naked lights etc. on vessels at wharves etc.41

26.Fires on vessels, notification and extinguishment of41

27.Waste disposal, masters’ duties as to42

28.Carcasses, debris etc., not to be thrown overboard42

29.Smoking in holds, prohibition of42

Division 2 — Oil vessels

30.Terms used43

31.Flag required on oil vessel43

32.Notice of intention to load or discharge inflammable liquid43

33.Inflammable liquids not to be discharged or loaded without permission44

34.Oil vessel to be moored as directed44

35.Oil vessel with inflammable liquids below deck, duties of master of44

36.Oil vessel loading or unloading inflammable liquid, restricted access to etc.46

37.Smoking etc. prohibited during loading or unloading inflammable liquid46

38.Oil vessel with tanks open, use of fires etc. on or near prohibited46

39.Pumping inflammable liquid between oil vessel and tank, master’s duties as to47

40.Tanks to be closed during pumping; pumping to cease if leak occurs48

41.Loading or unloading inflammable liquids at night48

42.Procedure on completing discharge of inflammable liquid48

43.No fires or ballasting while tanks are open49

44.Pipelines etc. to be oil and vapour tight49

45.Oil vessel to have steel hawsers to permit towing50

46.Preventing fire, master of oil vessel’s duties as to50

47.Harbour master may inspect oil vessel50

48.Wharf to be barricaded while loading and unloading inflammable liquid51

Part 8 — Miscellaneous

49.Police officer’s powers to enforce these regulations52

50.Master responsible for compliance with regulations52

51.General offence and penalty52

Part 9 — Transitional provisions

52.Shipping and Pilotage Amendment Act 2006, provisions for53

Schedule 1A — Declared ports

Division 1 — Name and limits of port

Division 2 — Copies of plans

Schedule 1 — Signals indicating tides

Schedule 2 — Signals to be displayed on vessels

Schedule 3 — Fees and charges

Division 1 — Pilotage at Wyndham

Division 2 — Conservancy dues

Schedule 4 — Specified countries

Schedule 5 — Specified documents

Schedule 6 — Forms

Notes

Compilation table82

Defined terms

 

Shipping and Pilotage Act 1967

Shipping and Pilotage (Ports and Harbours) Regulations 1966

Part 1  Preliminary

[Heading inserted in Gazette 4 Jun 2010 p. 2424.]

1.Citation

These regulations may be cited as the Shipping and Pilotage (Ports and Harbours) Regulations 1966 1.

[Regulation 1 amended in Gazette 24 Jun 2005 p. 2774; 4 Jun 2010 p. 2424.]

[2.Deleted in Gazette 4 Jun 2010 p. 2424.]

3.Port Walcott, charges for pilotage at

[(1), (2)deleted]

(3)No charges are payable under these regulations in respect of any pilotage service provided at Port Walcott where a charge is payable in respect of the service under the Iron Ore (Robe River) Cape Lambert Ore and Service Wharves By‑laws 1995.

[Regulation 3 inserted in Gazette 24 Sep 1971 p. 3580; amended in Gazette 31 Mar 1995 p. 1175; 25 Jun 2004 p. 2266; 4 Jun 2010 p. 2424.]

4.Terms used

In these regulations unless the contrary intention appears — 

approved means approved by the CEO;

certificate means a pilotage exemption certificate issued under regulation 16;

certificate of health means a valid Certificate of Medical Fitness under Part 9 of the Marine Orders made under the Navigation Act 1912 (Commonwealth);

coasting vessel means a vessel solely employed in trade between ports of the State;

exempt master, in relation to a vessel, means a master who holds a valid pilotage exemption certificate for a pilotage area;

gross registered tonnage means the gross registered tonnage of a vessel calculated or determined in accordance with regulation 18A;

International Tonnage Certificate (1969) means a certificate issued pursuant to Article 7 or 8 of the International Convention on Tonnage Measurement of Ships (1969) as set out in Schedule 8 to the Navigation Act 1912 of the Commonwealth, as amended;

interstate vessel means a vessel solely employed in trading between ports of the Commonwealth, other than solely between ports in the State, or of New Zealand and ports of the State;

licensed pilot, in relation to a vessel in a pilotage area, means a person who holds a licence under Part 5 to act as a pilot for —

(a)the pilotage area; and

(b)if conditions relating to the size of vessels are imposed on the licence — a vessel of that size;

master in relation to a vessel, means the person for the time being having the command, charge, custody or control of the vessel;

owner in relation to a vessel, includes the authorised agent of the owner;

passenger means any person carried in a vessel, other than as the master, a seaman or indentured apprentice;

subject port, in relation to an application for a pilotage exemption certificate, means a port for which the certificate is sought;

surveyor means a person appointed by the Governor to act as a surveyor of vessels and machinery;

tons or tonnage, in relation to a British registered vessel, means the gross registered tons or tonnage calculated in accordance with the British measurement of registered tonnage, and, in relation to any other vessel, means the gross registered tons or tonnage calculated in accordance with the standard of measurement adopted by the authority by which the vessel is registered;

vessel includes ship, hulk, boat, barge, lighter, flat and any other type of craft howsoever propelled;

vessel of war means a vessel built for combatant service or converted for that purpose and tankers conveying fuel oil for such a vessel, if the vessel is owned or otherwise directly managed or controlled by the Government of the United Kingdom or of any of Her Majesty’s States, Dominions or Colonies, or by the Government of any foreign country which is a party with Her Majesty to any military alliance and not engaged in trade, but does not include a vessel used solely for the transport of troops, stores or equipment;

Western Australian Land Information Authority means the Western Australian Land Information Authority established by the Land Information Authority Act 2006;

wharf includes any jetty or structure to which a vessel may be made fast or on which passengers, cargo or merchandise may be loaded or discharged.

[Regulation 4 amended in Gazette 10 Aug 1979 p. 2433; 28 Aug 1981 p. 3574; 21 May 1982 p. 1579; 10 Dec 1982 p. 4799; 19 Jul 1991 p. 3644; 11 Aug 1992 p. 3975; 6 Aug 1993 p. 4276; 4 Jun 2010 p. 2424‑5.]

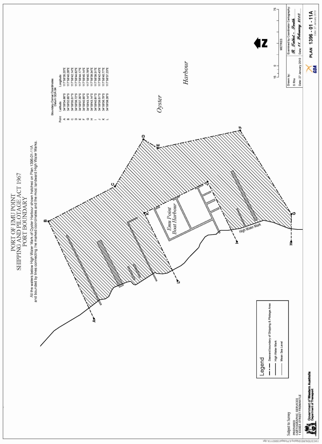
5A.Ports declared (Act s. 10)

An area of water, or land and water specified in Schedule 1A Division 1 is declared to be a port for the purposes of the Act.

[Regulation 5A inserted in Gazette 4 Jun 2010 p. 2425.]

Part 2  Appointment of harbour masters and deputy harbour masters

[Heading inserted in Gazette 4 Jun 2010 p. 2426.]

5B.Harbour masters and deputy harbour masters, appointment of

(1)The Minister may appoint a person to be a harbour master or deputy harbour master of a port only if the person meets the requirement under subregulation (2).

(2)A person meets the requirement under this subregulation if the person —

(a)holds, or has held, a certificate of competency, or a certificate of recognition, of the grade of Master issued under Part 3 of the Marine Orders made under the Navigation Act 1912 (Commonwealth); or

(b)otherwise possesses the skills and experience that demonstrate, to the satisfaction of the Minister, the person’s competency to perform the functions of a harbour master, or deputy harbour master, of the port, as the case requires.

[Regulation 5B inserted in Gazette 4 Jun 2010 p. 2426; amended in Gazette 29 Oct 2010 p. 5332.]

5C.Conditions of appointment

(1)The Minister may appoint a person to be a harbour master or deputy harbour master subject to any conditions that the Minister considers necessary to impose, as specified in the instrument of appointment.

(2)The Minister may, at any time by written notice given to a harbour master or deputy harbour master, impose a new condition on his or her appointment or amend or revoke any condition imposed.

[Regulation 5C inserted in Gazette 4 Jun 2010 p. 2426‑7.]

5D.Duration of appointment

An appointment of a harbour master or deputy harbour master has effect until —

(a)the appointee resigns by written notice given to the Minister; or

(b)the appointment is revoked by the Minister; or

(c)the appointment is otherwise terminated in accordance with its terms and conditions.

[Regulation 5D inserted in Gazette 4 Jun 2010 p. 2427.]

Note:Part 3 has been reserved for regulations relating to marine safety plans. Marine safety plans are referred to in sections 7B and 12(1)(bc), as to be inserted in the Act on the proclamation of the Shipping and Pilotage Amendment Act 2006 sections 8 and 13(1)(b) respectively.

Part 4  Signals

[Heading inserted in Gazette 4 Jun 2010 p. 2427.]

5.Tides, signals to be displayed at ports about (Sch. 1)

The signals to be displayed at a port referred to in Schedule 1 to indicate the height or state of the tide at that port shall be the signals set out in the Table in that Schedule appropriate to that port.

[Regulation 5 amended in Gazette 4 Jun 2010 p. 2462.]

6.Vessels, signals to be displayed on (Sch. 2)

The signal to be displayed upon any vessel for a purpose referred to in Schedule 2 Table 1 column 1 shall be the signal set out in the second column of that Table opposite to that purpose.

[Regulation 6 amended in Gazette 4 Jun 2010 p. 2462.]

7.Dredgers, signals to be displayed on (Sch. 2)

(1)The signal to be displayed by the master of a dredger within a port for a purpose set out in Schedule 2 Table 2 column 1 shall be the signal set out in the second column of that Table opposite to that purpose.

(2)The master of a dredger who fails to give the appropriate signal set out in that Table in any case where the dredger — 

(a)is blocking a channel; or

(b)is under way but unable to manoeuvre so as to give way to or avoid any other vessel; or

(c)is otherwise unable to move, or is out of control; or

(d)is so placed or is so being worked as to constitute a danger to the safe navigation of any other vessel unless the appropriate signal is given,

commits an offence.

[Regulation 7 amended in Gazette 4 Jun 2010 p. 2462.]

8.Improper use of signals

A master of a vessel shall not use or display or cause or permit any person on the vessel to use or display — 

(a)a signal set out in Schedule 2 Table 1 column 2 or Table 2 column 2 except for the purpose of conveying the message set out in the first column of Table 1 or Table 2, as the case may be, opposite to that signal; or

(b)for the purpose of conveying a message set out in Schedule 2 Table 1 column 1 or Table 2 column 1, a signal other than the signal set out in the second column of Table 1 or Table 2, as the case may be, opposite to that message.

[Regulation 8 amended in Gazette 4 Jun 2010 p. 2462.]

Part 5  Pilotage

[Heading inserted in Gazette 4 Jun 2010 p. 2427.]

Division 1 — Licensing of pilots

[Heading inserted in Gazette 4 Jun 2010 p. 2428.]

9A.Licence required to act as pilot

(1)Except as provided in subregulation (2), a person must not act as a pilot for a vessel in a pilotage area unless the person is a licensed pilot.

Penalty: a fine of $10 000.

(2)A person may act as a pilot for a vessel in a pilotage area if the person —

(a)is undergoing training to become a licensed pilot; and

(b)is acting under the direct supervision of a licensed pilot.

[Regulation 9A inserted in Gazette 4 Jun 2010 p. 2428.]

9B.Application for licence

(1)A person may apply to the CEO for a licence to act as a pilot for a pilotage area.

(2)The application must —

(a)be in the approved form; and

(b)be accompanied by a fee of $450.00.

[Regulation 9B inserted in Gazette 4 Jun 2010 p. 2428; amended in Gazette 21 Jun 2011 p. 2242; 15 Jun 2012 p. 2527; 28 Jun 2013 p. 2769; 30 May 2014 p. 1688.]

9C.Issue of licence

(1)The CEO may issue a licence to a person to act as a pilot for a pilotage area only if —

[(a)deleted]

(b)the person meets the requirement under subregulation (2) or (4); and

(c)the person has submitted a certificate of health to the CEO and the CEO is satisfied on the basis of that certificate that the person does not suffer from any disability that is likely to affect his or her ability to do what the licence will entitle him or her to do.

(2)A person meets the requirements under this subregulation if the person —

(a)holds a valid certificate of competency, or a valid certificate of recognition, of the grade of Master issued under Part 3 of the Marine Orders made under the Navigation Act 1912 (Commonwealth); and

(b)has satisfactorily completed an approved training course; and

(c)has completed such number of trips as a pilot acting under the direct supervision of a licensed pilot, in such conditions and at such times of the day or night, sufficient to satisfy the CEO that the person —

(i)has adequate knowledge of the relevant pilotage area; and

(ii)has adequate skill,

to be licensed as a pilot.

(3)The CEO cannot be satisfied of a person’s knowledge and skill under subregulation (2)(c) unless —

(a)the trips have been recorded in a log book in an approved form; and

(b)each trip has been verified in writing by the supervising licensed pilot; and

(c)the supervising licensed pilot has provided to the CEO a signed statement attesting to the person’s knowledge and skill.

(4)A person who does not meet the requirement under subregulation (2) meets the requirement under this subregulation if the person otherwise possesses the skills and experience that demonstrates, to the satisfaction of the CEO, the person’s competency to act as a pilot in the pilotage area.

[Regulation 9C inserted in Gazette 4 Jun 2010 p. 2428‑30; amended in Gazette 29 Oct 2010 p. 5332.]

9D.Conditions of licence

(1)The CEO may issue or renew a licence subject to any conditions that the CEO considers necessary to impose, as specified in the licence.

(2)The CEO may, at any time by written notice given to the holder of a licence, impose a new condition on the licence or amend or revoke any condition imposed.

(3)Without limiting subregulation (1) or (2), the CEO may impose a condition on a licence that the holder is to submit a certificate of health to the Department —

(a)on every second anniversary after the date on which the first certificate of health was submitted under regulation 9C(1)(c); or

(b)at any other time specified by a medical practitioner in a certificate of health submitted under paragraph (a).

(4)Without limiting subregulation (1) or (2), the CEO may impose a condition on a licence that the holder is not to act as a pilot for a vessel of a size that is —

(a)if regulation 9C(2) applies to the holder — larger than the largest vessel in which the holder made a trip into or out of the pilotage area as a pilot under supervision referred to in regulation 9C(2)(c); or

(b)if regulation 9C(4) applies to the holder — beyond the holder’s competency referred to in that regulation.

(5)The holder of a licence must comply with any condition imposed on the licence.

[Regulation 9D inserted in Gazette 4 Jun 2010 p. 2430‑1.]

9E.Duration of licence

(1)A licence is to have effect for 5 years from —

(a)the date it is issued; or

(b)if it is a renewed licence — the day after the day when the licence would have expired if the last renewal were not made,

unless it is suspended or revoked under regulation 9H.

(2)The expiry date of the licence is to be specified in the licence.

[Regulation 9E inserted in Gazette 4 Jun 2010 p. 2431.]

9F.Renewal of licence, application for

(1)The holder of a licence may apply to the CEO for renewal of the licence.

(2)The application must —

(a)be made within 28 days before the licence expires; and

(b)be in the approved form; and

(c)be accompanied by a fee of $290.00.

(3)If an application is made in accordance with subregulation (2) but not decided before the licence expires, the licence is to be taken, despite regulation 9E, to continue to have effect until the applicant is notified of the CEO’s decision to renew or not to renew the licence.

[Regulation 9F inserted in Gazette 4 Jun 2010 p. 2431; amended in Gazette 21 Jun 2011 p. 2243; 15 Jun 2012 p. 2527; 28 Jun 2013 p. 2769; 30 May 2014 p. 1688.]

9G.Renewal of licence

The CEO may refuse to renew a licence if the CEO suspects, on reasonable grounds, that the holder of the licence —

(a)no longer meets a requirement under regulation 9C(1)(b); or

(b)is no longer competent to act as a pilot in a pilotage area; or

(c)has not satisfactorily completed an approved training course required by the CEO for the renewal; or

(d)is in breach of a condition imposed on the licence under regulation 9D(3); or

(e)is guilty of misconduct, or has been seriously negligent, in performing his or her function as a pilot.

[Regulation 9G inserted in Gazette 4 Jun 2010 p. 2432.]

9H.Suspension and revocation of licence

(1)The CEO may suspend or revoke a licence if the CEO suspects, on reasonable grounds, that the holder of the licence —

(a)no longer meets the requirement under regulation 9C(1)(a); or

(b)is in breach of a condition imposed on the licence under regulation 9D(3); or

(c)is no longer competent to act as a pilot in a pilotage area; or

(d)is guilty of misconduct, or has been seriously negligent, in performing his or her function as a pilot; or

(e)obtained the licence by false representation or other fraudulent means.

(2)The CEO may suspend a licence under subregulation (1) —

(a)for a period specified by the CEO; or

(b)until the holder complies with a requirement specified by the CEO.

(3)Before the CEO decides to suspend or revoke a licence, the CEO must give written notice to the holder, stating the following —

(a)the proposed suspension or revocation;

(b)the findings of facts on which the decision is based;

(c)the reason for the decision;

(d)the period during which the holder may make written or oral representations to the CEO.

(4)If, after considering any representations made to the CEO under subregulation (3), the CEO decides to suspend or revoke a licence, the CEO must give written notice to the holder, stating the following —

(a)the decision to suspend or revoke;

(b)the date from which the suspension or revocation is to take effect;

(c)in the case of a suspension —

(i)the period of the suspension; or

(ii)any requirement that has to be complied with by the holder before the suspension ceases to have effect.

(5)If, after considering any representations made to the CEO under subregulation (3), the CEO decides to suspend or revoke a licence, the CEO must also give notice of the CEO’s decision to the harbour master of the port concerned.

[Regulation 9H inserted in Gazette 4 Jun 2010 p. 2432‑3.]

9I.Review of decisions by SAT

(1)In this regulation —

reviewable decision means any of the following decisions by the CEO —

(a)a decision under regulation 9C not to issue a licence;

(b)a decision under regulation 9D to impose or amend a condition;

(c)a decision under regulation 9G not to renew a licence;

(d)a decision under regulation 9H to suspend or revoke a licence.

(2)A person aggrieved by a reviewable decision may apply to the State Administrative Tribunal for a review of the decision.

[Regulation 9I inserted in Gazette 4 Jun 2010 p. 2434.]

9J.Lost etc. licence documents, replacement of

If the CEO is satisfied that a licence document has been damaged, lost or stolen, the CEO may issue a replacement on payment of a fee of $160.00.

[Regulation 9J inserted in Gazette 29 Oct 2010 p. 5332; amended in Gazette 21 Jun 2011 p. 2243; 15 Jun 2012 p. 2527; 28 Jun 2013 p. 2769; 30 May 2014 p. 1688.]

Division 2 — Requirements relating to pilotage

[Heading inserted in Gazette 4 Jun 2010 p. 2434.]

9.Which vessels require licensed pilot in pilotage area

The master of any vessel other than — 

(a)a vessel of war; or

(b)a vessel owned by any of Her Majesty’s States or Colonies or the government of any country that is a member of the British Commonwealth of Nations, that is engaged in a non‑commercial voyage; or

(c)a private pleasure vessel of less than 500 t gross tonnage; or

(d)a training vessel on a non‑commercial voyage; or

(e)an Australian registered commercial or fishing vessel of less than 500 t gross tonnage; or

(f)a vessel on a non‑commercial voyage exempted in circumstances which are or at the discretion of the CEO; or

(g)a vessel under the command of a master who holds a valid certificate in respect of the pilotage area concerned,

shall not cause or permit the vessel to enter or depart from any pilotage area without having first taken on board a licensed pilot.

[Regulation 9 amended in Gazette 23 Oct 1987 p. 3942 (erratum 13 Nov 1987 p. 4146); 19 Jul 1991 p. 3644; 11 Aug 1992 p. 3975; 4 Jun 2010 p. 2434‑5 and 2463.]

10.Boarding and discharging pilot, master’s duties as to

(1)The master of a vessel approaching a pilotage area must —

(a)lay to on the pilot boarding ground so as to provide the best possible lee; and

(b)provide on the lee side of the vessel a pilot ladder fitted with spreaders and a man rope on either side of the ladder made fast to the vessel quite independent of the ladder, and cause the ladder to be suitably illuminated if the pilot is to board the vessel at night; and

(c)if the vessel is of high structure, and is fitted with gangway doors, cause one gangway door to be opened and the ladder rigged at that doorway; and

(d)provide a suitable boat rope of which the forward end is fastened well clear forward of the ladder in readiness to be released when the pilot vessel has secured the boat rope; and

(e)arrange for all scuppers, sanitary and other refuse outlets near the pilot ladder to be closed.

(2)The master of a vessel from which a pilot is being discharged after the vessel has departed from a pilotage area must make arrangements similar to those set out in subregulation (1) to assist the pilot leaving the vessel and boarding the pilot boat.

[Regulation 10 amended in Gazette 19 Jul 1991 p. 3644; 4 Jun 2010 p. 2435.]

11.Master to declare draught to pilot

The master of a vessel onto which a pilot has been taken, shall, if requested, declare to the pilot the draught of the vessel.

12.Flag required on pilot boat

The master of a pilot boat shall, at any time that the vessel is in service, cause to be so flown from the pilot boat as to be easily discernible from a reasonable distance a flag of which the upper half is white and the lower half red.

13.Masters of tugs etc. assisting piloted vessel to obey pilot

The master of any vessel that is employed to tow, move or in any way assist the manoeuvring of a vessel in the charge of a licensed pilot shall obey all orders and directions of the pilot.

[Regulation 13 amended in Gazette 4 Jun 2010 p. 2464.]

14.Vessel movement in pilotage area, restrictions on; when 2 pilots required

(1)The master of any vessel that is within a pilotage area —

(a)must not move the vessel within that pilotage area without the consent of the harbour master of the port, except as provided in subregulation (2A); and

(b)unless he or she is an exempt master in respect of that pilotage area — must obtain the services of a licensed pilot before moving the vessel if the harbour master so directs.

(2A)If the harbour master of a port has given consent for a dredging operation to commence, the master of the dredger may, for the purposes of the operation, move the vessel within any part of the pilotage area, as permitted by the harbour master.

(2)Where, because of the structural arrangement of a vessel, the visibility of a pilot conning a vessel from the normal position is adversely affected, the harbour master may direct that a second licensed pilot be engaged to assist the first pilot.

(3)Where a second licensed pilot is engaged to assist, an additional charge equal to half the amount payable for the first pilot is payable to a maximum of $5 525.01 in respect of each occasion on which that vessel is required to be so piloted.

[Regulation 14 inserted in Gazette 14 Jun 1974 p. 1911; amended in Gazette 12 Oct 1984 p. 3274 (erratum 26 Oct 1984 p. 3459); 30 Aug 1985 p. 3079; 8 Aug 1986 p. 2831; 16 Oct 1987 p. 3896; 12 Aug 1988 p. 2711; 30 Jun 1989 p. 1921; 1 Aug 1990 p. 3643; 19 Jul 1991 p. 3644; 26 Jul 1991 p. 3925; 30 Jun 1992 p. 2902; 29 Jun 1993 p. 3182; 14 Jun 1994 p. 2483; 30 Jun 1995 p. 2692; 25 Jun 1996 p. 2993; 12 May 1998 p. 2773; 20 Jun 2000 p. 3040; 27 Jul 2001 p. 3802; 14 Jun 2002 p. 2821; 27 Jun 2003 p. 2521; 25 Jun 2004 p. 2266; 24 Jun 2005 p. 2774; 23 Jun 2006 p. 2209; 12 Jun 2007 p. 2723; 1 Jul 2008 p. 3156; 23 Jun 2009 p. 2483; 4 Jun 2010 p. 2435‑6 and 2464‑5; 30 Jun 2010 p. 3168; 21 Jun 2011 p. 2231; 15 Jun 2012 p. 2521; 28 Jun 2013 p. 2777; 27 Jun 2014 p. 2353.]

Division 3 — Charges

[Heading inserted in Gazette 4 Jun 2010 p. 2436.]

15.Charge for pilotage (Sch. 3 Div. 1)

(1)The master or owner of any vessel other than — 

(a)a vessel of war; or

(b)a vessel owned by any of Her Majesty’s States or Colonies or the government of any country that is a member of the British Commonwealth of Nations, that is engaged in a non‑commercial voyage; or

(c)a private pleasure vessel of less than 500 t gross tonnage; or

(d)a training vessel on a non‑commercial voyage; or

(e)an Australian registered commercial or fishing vessel of less than 500 t gross tonnage; or

(f)a vessel on a non‑commercial voyage exempted in circumstances which are at the discretion of the CEO,

for which the services of a licensed pilot or licensed pilots have been obtained at a pilotage area must pay to the harbour master of the port the charge set out in Schedule 3 Division 1 that is appropriate to the size and class of the vessel and the nature of the pilotage services obtained.

(2)For the purposes of subregulation (1), the services of a licensed pilot are to be deemed to have been obtained — 

(a)in respect of a vessel that could not conveniently be boarded by a licensed pilot and was led into port by a vessel on which a licensed pilot was on board for the purpose of guiding that firstmentioned vessel into port; or

(b)in respect of a vessel that was brought into or out of a port, or that was moved within a port, without the services of a licensed pilot being obtained in circumstances in which, pursuant to the provisions of regulation 9 or regulation 14, as the case may be, the master was required to take a licensed pilot on board the vessel.

(3)If the master of a vessel (other than a vessel referred to in subregulation (1)(a) to (f)) requires that vessel to be piloted — 

(a)from a point at sea to the pilot boarding ground of the port concerned; or

(b)from the pilot boarding ground of the port concerned to a point at sea,

that master or the owner of that vessel shall pay to the harbour master at that port an amount of $909.24, in respect of each occasion on which that vessel is required so to be piloted.

[Regulation 15 amended in Gazette 14 Jun 1974 p. 1911; 20 Jun 1980 p. 1832‑3; 26 Jun 1981 p. 2417; 4 Jul 1982 p. 2512; 5 Aug 1983 p. 2837; 12 Oct 1984 p. 3271; 30 Aug 1985 p. 3079; 8 Aug 1986 p. 2831; 16 Oct 1987 p. 3896; 23 Oct 1987 p. 3942; 12 Aug 1988 p. 2711; 30 Jun 1989 p. 1921; 1 Aug 1990 p. 3643; 26 Jul 1991 p. 3925; 30 Jun 1992 p. 2902; 11 Aug 1992 p. 3975; 29 Jun 1993 p. 3182; 14 Jun 1994 p. 2483; 30 Jun 1995 p. 2692; 25 Jun 1996 p. 2993; 27 Jun 1997 p. 3148; 12 May 1998 p. 2773; 20 Jun 2000 p. 3040; 14 Jun 2002 p. 2821; 27 Jun 2003 p. 2521; 25 Jun 2004 p. 2266; 24 Jun 2005 p. 2774; 23 Jun 2006 p. 2209; 12 Jun 2007 p. 2723; 1 Jul 2008 p. 3157; 23 Jun 2009 p. 2483; 4 Jun 2010 p. 2436 and 2463‑5; 30 Jun 2010 p. 3168; 21 Jun 2011 p. 2231; 15 Jun 2012 p. 2521; 28 Jun 2013 p. 2777; 27 Jun 2014 p. 2353.]

15A.Detaining etc. licensed pilot, charges for

(1)In the event of a licensed pilot being detained at a vessel until such vessel is ready to leave the berth, a special charge of —

(a)$905.84 per hour or portion thereof, at the port of Wyndham ; and

(b)$531 per hour or portion thereof, at any other port,

is payable.

(2)Where a licensed pilot is called out to attend a vessel in accordance with an application for pilotage and such vessel does not arrive at the boarding ground at the time given and the pilot is required to await the arrival of the vessel or the arrival is cancelled completely, detention of the pilot and the pilot vessel shall be payable at the rate of —

(a)$905.84 per hour, at the port of Wyndham ; and

(b)$531 per hour, at any other port,

for the period of the detention, except during overtime hours when the charge payable shall be —

(c)$1 075.48 per hour, at Wyndham; and

(d)$630 per hour, at any other port.

[Regulation 15A inserted in Gazette 12 May 1998 p. 2773; amended in Gazette 20 Oct 1998 p. 5792; 20 Jun 2000 p. 3040‑1; 14 Jun 2002 p. 2821; 27 Jun 2003 p. 2521‑2; 25 Jun 2004 p. 2266; 24 Jun 2005 p. 2774; 23 Jun 2006 p. 2209; 12 Jun 2007 p. 2723‑4; 1 Jul 2008 p. 3157; 23 Jun 2009 p. 2483‑4; 4 Jun 2010 p. 2464; 30 Jun 2010 p. 3168; 21 Jun 2011 p. 2231; 15 Jun 2012 p. 2521; 28 Jun 2013 p. 2777; 27 Jun 2014 p. 2353.]

15B.Launch to run mooring lines, charges for

Where the Department provides a launch to run mooring lines — 

(a)during the berthing of a vessel; or

(b)in connection with the entry or departure of a vessel into and from a port,

and the use of the launch is associated with the pilotage of the vessel, whether or not the vessel is in the charge of an exempt master, the owner or master of the vessel shall pay to the Department an amount of $430.88 in respect of each hour or portion of an hour for which the launch is so used, except during overtime hours when the charge payable shall be $617.48 in respect of each hour or portion of an hour for which the launch is so used.

[Regulation 15B inserted in Gazette 12 Oct 1984 p. 3271; amended in Gazette 30 Aug 1985 p. 3080; 8 Aug 1986 p. 2831; 16 Oct 1987 p. 3896; 12 Aug 1988 p. 2711; 30 Jun 1989 p. 1921; 1 Aug 1990 p. 3643; 19 Jul 1991 p. 3644; 26 Jul 1991 p. 3925; 30 Jun 1992 p. 2902; 29 Jun 1993 p. 3182; 14 Jun 1994 p. 2484; 30 Jun 1995 p. 2692‑3; 25 Jun 1996 p. 2993; 27 Jun 1997 p. 3149; 12 May 1998 p. 2773; 20 Jun 2000 p. 3041; 14 Jun 2002 p. 2821; 27 Jun 2003 p. 2522; 25 Jun 2004 p. 2266; 24 Jun 2005 p. 2774; 23 Jun 2006 p. 2209; 12 Jun 2007 p. 2724; 1 Jul 2008 p. 3157; 23 Jun 2009 p. 2484; 30 Jun 2010 p. 3169; 21 Jun 2011 p. 2231; 15 Jun 2012 p. 2521; 28 Jun 2013 p. 2777; 27 Jun 2014 p. 2353.]

15C.Pilot remaining on board, charges for

Where a pilot at a port is required to remain on board or at a vessel which is moored or at a berth, for any reason, there shall be a charge of —

(a)$135.70 per hour with a minimum charge of $909.24 and a maximum charge in any 24 hour period of $2 361.32 at the port of Wyndham ; and

(b)$80 per hour with a minimum charge of $533 and a maximum charge in any 24 hour period of $1 384, at any other port.

[Regulation 15C inserted in Gazette 12 May 1998 p. 2773; amended in Gazette 20 Oct 1998 p. 5792; 20 Jun 2000 p. 3041; 14 Jun 2002 p. 2821; 27 Jun 2003 p. 2522; 25 Jun 2004 p. 2266‑7; 24 Jun 2005 p. 2774‑5; 23 Jun 2006 p. 2209; 12 Jun 2007 p. 2724; 1 Jul 2008 p. 3157; 23 Jun 2009 p. 2484; 4 Jun 2010 p. 2437; 30 Jun 2010 p. 3169; 21 Jun 2011 p. 2231; 15 Jun 2012 p. 2521-2; 28 Jun 2013 p. 2777; 27 Jun 2014 p. 2353.]

Division 4 — Pilotage exemption certificates

[Heading inserted in Gazette 4 Jun 2010 p. 2437.]

16.Who is entitled to certificate

The CEO shall issue a pilotage exemption certificate, valid for use in respect of the pilotage areas specified in the certificate, to a person who — 

(a)is entitled to reside permanently in Australia under an Act of the Commonwealth; and

(b)has met the requirements of regulation 16B; and

(c)has submitted a certificate of health showing, to the satisfaction of the CEO, that he or she does not suffer from any disability that is likely to affect his or her ability to do what the certificate will entitle him or her to do; and

(d)has paid a fee of —

(i)$999.15 in relation to the port of Wyndham , if Wyndham is a specified port; and

(ii)$640.00 in respect of each port specified in the certificate.

[Regulation 16 inserted in Gazette 19 Jul 1991 p. 3644‑5; amended in Gazette 26 Jul 1991 p. 3926; 30 Jun 1992 p. 2903; 29 Jun 1993 p. 3183; 14 Jun 1994 p. 2484; 30 Jun 1995 p. 2693; 25 Jun 1996 p. 2994; 12 May 1998 p. 2773‑4; 20 Jun 2000 p. 3041; 14 Jun 2002 p. 2821; 27 Jun 2003 p. 2522; 25 Jun 2004 p. 2267; 24 Jun 2005 p. 2775; 23 Jun 2006 p. 2209; 12 Jun 2007 p. 2724; 1 Jul 2008 p. 3157; 23 Jun 2009 p. 2484; 4 Jun 2010 p. 2437, 2463 and 2466; 30 Jun 2010 p. 3169; 21 Jun 2011 p. 2231; 15 Jun 2012 p. 2522 and 2527; 28 Jun 2013 p. 2769 and 2778; 30 May 2014 p. 1688; 27 Jun 2014 p. 2354.]

16A.Who is eligible to attempt r. 16B examination

(1)A person is not eligible to be examined under regulation 16B unless in the 2 years immediately before the examination he or she has made —

(a)3 trips into and 3 trips out of the subject port in command of a vessel; or

(b)2 trips into and 2 trips out of the subject port in command of a vessel and 2 trips into and 2 trips out of the subject port as first mate on duty on the bridge throughout the period of pilotage or, if the vessel was under the command of an exempt master, throughout what would otherwise have been the period of compulsory pilotage.

(2)Where a person is seeking to obtain a certificate that is valid for use during hours of daylight and hours of darkness, at least one trip into and one trip out of the subject port in command of a vessel as referred to in subregulation (1) must have been made during hours of darkness.

(3)The trips as first mate referred to in subregulation (1)(b) have to be verified in writing by the master or exempt master in command of the vessel.

[Regulation 16A inserted in Gazette 19 Jul 1991 p. 3645; amended in Gazette 1 Jul 2008 p. 3155.]

16B.Examinations as to knowledge of port etc.

(1)An applicant for a certificate has to demonstrate, on written or oral examination — 

(a)adequate general knowledge of the subject port, particularly the soundings, minimum keel clearances, tides, currents, buoys, beacons and lights within the subject port and its approaches; and

(b)ability to satisfactorily complete blank charts of the subject port by marking soundings and characteristics of the buoys, beacons, lights, signals and other aids to navigation; and

(c)thorough knowledge of control requirements, traffic patterns, separation lanes and the special signals, communications and rules applicable to the subject port; and

(d)a reasonable knowledge of — 

(i)these regulations; and

(ii)the Shipping and Pilotage Act 1967; and

(iii)the Western Australian Marine Act 1982; and

(iv)the Pollution of Waters by Oil and Noxious Substances Act 1987; and

(v)any written law applying specifically in respect of the subject port.

(2)An applicant for a certificate has to demonstrate by practical examination safe ship handling ability within the limits of the subject port.

[Regulation 16B inserted in Gazette 19 Jul 1991 p. 3645; amended in Gazette 4 Jun 2010 p. 2437‑8.]

16C.Certificate of health

[(1)deleted]

(2)An exempt master shall submit a certificate of health to the Department not later than 2 years after the date on which the previous certificate of health was submitted.

(3)Where a medical practitioner has recommended that an exempt master undergo a medical examination for the purposes of this regulation after a nominated period that is less than 2 years after the date of the previous medical examination for the purposes of this regulation, the exempt master shall — 

(a)undergo a medical examination in accordance with that recommendation; and

(b)submit to the Department immediately after the examination — 

(i)a certificate of health; or

(ii)written notification that a certificate of health was not issued.

[Regulation 16C inserted in Gazette 19 Jul 1991 p. 3645‑6; amended in Gazette 4 Jun 2010 p. 2438.]

16D.Maximum length of vessel, determining for certificates

(1)Subject to regulation 16E(1), the maximum length of a vessel in respect of which a certificate may be used in a pilotage area shall be determined by the harbour master for the relevant port having regard to — 

(a)the depth and width of channel entrances; and

(b)available deep water manoeuvring space; and

(c)local tidal conditions; and

(d)local current conditions; and

(e)proximity of other vessels and berthing facilities.

(2)The CEO shall cause to be recorded in each certificate the maximum length of a vessel in respect of which the certificate may be used.

[Regulation 16D inserted in Gazette 19 Jul 1991 p. 3646; amended in Gazette 4 Jun 2010 p. 2438 and 2463‑5.]

16E.Restrictions and conditions in certificates

(1)The CEO shall not issue a certificate for use in respect of a vessel that is longer than the longest vessel in which the exempt master made a trip into or out of the subject port in command of a vessel as referred to in regulation 16A(1).

(2)The CEO may, on the written recommendation of the harbour master for a port, issue all certificates in respect of that port for use only in respect of specified areas of the port.

(3)Where a person who is otherwise entitled to a certificate has not met the requirements of regulation 16A(2), the CEO shall issue a certificate for use by the person during hours of daylight only.

(4)An exempt master shall comply with all conditions attaching to his or her certificate.

[Regulation 16E inserted in Gazette 19 Jul 1991 p. 3646; amended in Gazette 1 Jul 2008 p. 3156; 4 Jun 2010 p. 2463‑6.]

16F.Certificates valid for only Australian crewed vessels

A certificate may be used only in respect of a vessel that is crewed in accordance with the requirements of —

(a)an award made, or an agreement registered, under the Industrial Relations Act 1979; or

(b)an award, or a collective agreement, made under the Workplace Relations Act 1996 (Commonwealth) 2.

[Regulation 16F inserted in Gazette 19 Jul 1991 p. 3646; amended in Gazette 4 Jun 2010 p. 2438.]

16G.Use of certificate may be prohibited

Notwithstanding any other regulation, where — 

(a)major works are being carried out in a pilotage area; or

(b)the vessel of an exempt master is carrying cargo that is noxious or otherwise hazardous; or

(c)there are any other circumstances that may impair the ability of the exempt master to navigate the vessel safely,

the harbour master for the relevant port may direct the exempt master to use the services of a licensed pilot to navigate the vessel into or out of the pilotage area, and the exempt master shall comply with such a direction.

[Regulation 16G inserted in Gazette 19 Jul 1991 p. 3646; amended in Gazette 4 Jun 2010 p. 2439 and 2464‑5.]

16H.Contents of certificate (Sch. 6)

(1)The CEO shall issue a certificate in accordance with Schedule 6 Form 1 to a person who becomes entitled to a certificate.

(2)The CEO shall cause a certificate to be suitably amended where there is any change in the entitlements of the exempt master under the certificate.

[Regulation 16H inserted in Gazette 19 Jul 1991 p. 3646; amended in Gazette 4 Jun 2010 p. 2462 and 2463.]

16I.Register of certificates

(1)The CEO shall cause to be established and maintained a register containing particulars of all persons holding certificates and their entitlements under the certificates.

(2)The CEO shall cause the register to be noted where the certificate of a person is cancelled or suspended.

[Regulation 16I inserted in Gazette 19 Jul 1991 p. 3646; amended in Gazette 4 Jun 2010 p. 2463.]

16J.Pilotage exemption record book for exempt masters (Sch. 6)

(1)The CEO shall issue to each exempt master a book containing pages in accordance with Schedule 6 Form 2 and the book is to be known as the “pilotage exemption record book”.

(2)An exempt master shall enter in the pilotage exemption record book, in respect of each trip into or out of a port — 

(a)the name of the port; and

(b)the date and time of commencement of the trip; and

(c)the name of the vessel.

(3)After making a trip into or out of a port and entering the particulars prescribed by subregulation (2) into the pilotage exemption record book, an exempt master shall present the book to the harbour master of the port concerned or another officer of the Department, who shall read and endorse the entry made by the exempt master.

(4)An officer of the Department to whom a certificate of health is submitted shall record the date on which the certificate was submitted in the pilotage exemption record book of the exempt master concerned and the exempt master shall produce the book to the officer for this purpose.

[Regulation 16J inserted in Gazette 19 Jul 1991 p. 3647; amended in Gazette 4 Jun 2010 p. 2462‑5.]

16K.Certificate invalid if not used for one year or more

A certificate that has not been used in respect of a pilotage area for one year or longer is invalid in respect of that pilotage area.

[Regulation 16K inserted in Gazette 19 Jul 1991 p. 3647; amended in Gazette 4 Jun 2010 p. 2439.]

16L.Revalidation of certificate invalid under r. 16K

A certificate that is invalid in respect of a pilotage area under regulation 16K is revalidated in respect of that pilotage area if the holder of the certificate makes, under pilotage, at least one trip into and one trip out of the pilotage area in command of a vessel within one year of the certificate becoming invalid in respect of that pilotage area.

[Regulation 16L inserted in Gazette 19 Jul 1991 p. 3647; amended in Gazette 4 Jun 2010 p. 2439.]

16M.Cancellation or suspension of certificate

(1)The CEO may cancel or suspend the certificate of an exempt master if — 

(a)the exempt master is convicted of contravening regulation 9, 16E(4), 16G or 16J(2) or (3); or

(b)the CEO believes on reasonable grounds that the exempt master has contravened any of those provisions.

(2)The CEO shall cancel a certificate that has become wholly invalid under regulation 16K and has not been wholly or partly revalidated under regulation 16L.

(3)The CEO shall cancel a certificate if its holder does not submit a certificate of health in accordance with regulation 16C(2) or (3).

(4)The CEO must cancel or suspend a certificate in respect of a pilotage area if he or she believes on reasonable grounds that the holder of the certificate is no longer competent to navigate a vessel into and out of the pilotage area.

(5)Where the CEO cancels or suspends a certificate, he or she shall in writing notify the person concerned of the cancellation or suspension and the reason for it, including, in the case of a cancellation or suspension under subregulation (1)(b) or (4), particulars of the reasons for the belief held by the CEO.

(6)The CEO shall, in a notification of a cancellation or suspension under subregulation (1)(b) or (4), inform the person concerned of the right of appeal under regulation 16N.

(7)A cancellation or suspension takes effect on the service of a notice under subregulation (5).

[Regulation 16M inserted in Gazette 19 Jul 1991 p. 3647; amended in Gazette 4 Jun 2010 p. 2440, 2463 and 2466.]

16N.Appeals against cancellation or suspension

(1)An exempt master whose certificate is cancelled or suspended under regulation 16M(1)(b) or (4) may, in writing, within 21 days of the day on which he or she received notice of the cancellation or suspension, appeal to the Minister against the decision of the CEO.

(2)The Minister shall determine an appeal without delay and may confirm the decision of the CEO or direct the CEO to reverse his or her decision or modify it in the manner specified by the Minister.

(3)The CEO shall give effect to a direction under subregulation (2).

[Regulation 16N inserted in Gazette 19 Jul 1991 p. 3647; amended in Gazette 4 Jun 2010 p. 2463 and 2466.]

17.Flag required if no licensed pilot on board

(1)The master of a vessel approaching any pilotage area who is, by reason of his or her being the holder of a Pilotage Exemption Certificate, entitled to bring the vessel into that pilotage area without taking on board a licensed pilot, shall cause to be flown from the vessel from the time that the vessel is within 5 nautical miles of the relevant port until the vessel berths, a white flag.

(2)Where a master referred to in subregulation (1) fails to comply with the provisions of that subregulation, the master or owner of that vessel shall be liable to pay the charges for pilotage that would have been payable if the services of a licensed pilot had been obtained.

[Regulation 17 amended in Gazette 27 Jun 2003 p. 2522; 4 Jun 2010 p. 2440, 2464 and 2466.]

Part 6  Conservancy dues

[Heading inserted in Gazette 4 Jun 2010 p. 2441.]

18.Conservancy dues (Sch. 3 Div. 20)

(1)The master or owner of any vessel other than — 

(a)a vessel of war; or

(b)a vessel owned by any of Her Majesty’s States or Colonies or the government of any country that is a member of the British Commonwealth of Nations, that is engaged in a non­‑commercial voyage; or

(c)a mission vessel; or

(d)a vessel calling at a port either for the purpose of remedying a situation endangering the safety of the vessel or of obtaining medical treatment for a person on board; or

(e)a vessel owned and used solely for private pleasure purposes; or

(f)subject to subregulation (1a), a fishing vessel used for professional purposes that is a subject of a current fishing boat licence granted under the Fish Resources Management Regulations 1995 or of an equivalent licence, permit or registration under the laws of another State or a Territory of the Commonwealth; or

(g)a commercial vessel — 

(i)of 5.5 m or less in length; or

(ii)without its own means of propulsion;

or

(h)a training vessel on a non‑commercial voyage; or

(i)a vessel which is at the time engaged as a private pleasure vessel or on some other non‑commercial voyage and which is exempted in circumstances which are at the discretion of the CEO; or

(j)a vessel having a length of 70 m or more exclusive of the bowsprit,

entering, calling at or using any port in the State shall pay to the Department conservancy dues calculated in accordance with the provisions of Schedule 3 Division 2.

(1a)The master or owner of any fishing vessel, entering, calling or using the Emu Point Fishing Boat Harbour, Albany, the Fishing Boat Harbour, Carnarvon, the Bandy Creek Small Boat Harbour, Esperance, the Fishing Boat Harbour, Fremantle, the Inner Harbour, Geraldton or the Fishing Boat Harbour, Port Denison, shall pay to the Department conservancy dues calculated in accordance with the provisions of Schedule 3 Division 2 item 3.

(2)The conservancy dues referred to in Schedule 3 Division 2 are payable — 

(a)in the case of conservancy dues referred to in item 1, on the date of the first entry of the vessel into or on the first day of use of, the port in the period in respect of which the conservancy dues are payable;

(b)in the case of conservancy dues referred to in item 2, on the day of entry of the vessel into the port;

(c)in the case of conservancy dues referred to in paragraph (i) of item 2, on 1 January;

(d)in the case of conservancy dues referred to in paragraph (ii) of item 2, on 1 July or 1 January, as the case may be;

(e)in the case of conservancy dues referred to in item 3, on 1 July.

(2a)For the purposes of this regulation, commercial vessel means a vessel which is not used solely for pleasure or recreation and the use of which is made, allowed or authorised in the course of any business or in connection with any commercial transaction but does not include a vessel referred to in subregulation (1)(a) to (f).

(3)Where the master of a vessel entering or within any port claims, by reason of there having been made a payment in respect of conservancy dues referred to in Schedule 3 Division 2 item 1, to be entitled to use that port for any period without further payment of conservancy dues, the harbour master may require the master or owner to produce satisfactory evidence of the payment so claimed to have been made and, subject to subregulation (4), where satisfactory evidence of that payment is not produced, the master or owner is liable to pay conservancy dues as if the payment claimed to have been made had not been made.

(4)Where the master of a vessel who — 

(a)has claimed to be entitled to bring the vessel into or use any port without payment of conservancy dues by reason of his or her previously having paid conservancy dues referred to in Schedule 3 Division 2 item 1; and

(b)has, by reason of his or her being unable to produce satisfactory evidence of that prior payment, been required to pay conservancy dues as if the prior payment claimed to have been made had not been made,

satisfies the harbour master or the Department that the payment claimed to have been made was made, there shall be paid to the master or owner an amount equal to the conservancy dues that were required to be paid in pursuance of subregulation (3).

(5)The master of a vessel shall produce the certificate of registry, and any certificate of tonnage or any other record specified in Schedule 5 to the Department or an authorised person, upon demand.

[Regulation 18 amended in Gazette 2 Dec 1977 p. 4442; 27 Mar 1981 p. 1077; 28 Aug 1981 p. 3574; 2 Jul 1982 p. 2361; 13 Aug 1982 p. 3141; 17 Feb 1984 p. 434; 29 Jun 1984 p. 1760; 28 Jun 1985 p. 2319; 23 Oct 1987 p. 3943; 26 Jul 1991 p. 3926; 11 Aug 1992 p. 3975; 6 Aug 1999 p. 3733; 27 Jun 2003 p. 2522‑3; 25 Jun 2004 p. 2267; 1 Jul 2008 p. 3157‑8; 4 Jun 2010 p. 2462‑6.]

18A.Gross registered tonnage, determining

(1)Subject to subregulation (2), in these regulations gross registered tonnage of a vessel is — 

(a)in the case of a vessel the certificate of registry or certificate of tonnage of which was issued by a country specified in Schedule 4, the sum of the highest gross tonnage appearing on that certificate and the tonnage, as estimated by an authorised person, of any cargo spaces specified on that certificate but not taken into account in the calculation or determination of that highest gross tonnage;

(b)in the case of a vessel the certificate of registry or certificate of tonnage of which was issued by a country other than a country referred to in paragraph (a) — 

(i)if that vessel formerly carried a certificate referred to in paragraph (a) and the Department is aware of the contents of that certificate — 

(I)the sum of the highest gross tonnage appearing in that certificate and the tonnage, as estimated by an authorised person, of any cargo spaces specified on that certificate but not taken into account in the calculation or determination of that highest gross tonnage; or

(II)the tonnage of that vessel as estimated by an authorised person by reference to the factors referred to in subparagraph (ii);

or

(ii)the tonnage of that vessel as estimated by an authorised person by reference to the dimensions and gross tonnage of a vessel similar to that vessel or to the measurements and dimensions of that vessel and any information appearing on any other document specified in Schedule 5 pertaining to the tonnage or measurement of the vessel.

(2)Where an International Tonnage Certificate (1969) has been issued in respect of a vessel, the gross registered tonnage of that vessel for the purposes of these regulations is the gross tonnage set out in the International Tonnage Certificate (1969) relating to that vessel.

[Regulation 18A inserted in Gazette 28 Aug 1981 p. 3574‑5; amended in Gazette 10 Dec 1982 p. 4799; 4 Jun 2010 p. 2462‑3.]

Part 7  Regulation of other matters

[Heading inserted in Gazette 4 Jun 2010 p. 2441.]

Division 1 — General

[Heading inserted in Gazette 4 Jun 2010 p. 2441.]

[18B.Deleted in Gazette 1 Aug 1990 p. 3641.]

19.Harbour masters’ powers

(1)The master of any vessel shall obey all lawful orders of the harbour master, and generally follow such directions as the weather, the crowded conditions of the port or other circumstances may render necessary or expedient, in the judgment of the harbour master, for the safety and interest of the whole shipping.

(2)The harbour master of any port has the entire control of the anchoring, mooring, berthing and movement of all vessels within the port, and shall appoint the place where any vessel is to anchor, moor or lie in the port and the berth that any vessel is to occupy.

(3)The harbour master of a port may at any time order the master of a vessel within the port to move the vessel from its place in the port to any other place in the port.

(4)Where for any reason the order of a harbour master to move a vessel in a port is not complied with, the harbour master may move the vessel at the risk and expense of the master or owner thereof, and for that purpose may, at the expense of the owner or master of the vessel, break any anchor chain or rope or mooring line securing the vessel.

(5)The harbour master at a port may, and shall if so directed by the CEO, require the master of a vessel that is entering, departing from or being moved within the port, to engage the services of a tug for that purpose.

[Regulation 19 amended in Gazette 27 Jun 2003 p. 2523; 4 Jun 2010 p. 2463‑6.]

20.Masters’ duties in port

Subject to these regulations, the master of any vessel within a port shall, unless otherwise directed by the harbour master, comply with the following provisions:

(a)a vessel shall not be fastened to any part of a wharf except to the bollards or fastenings that are, or may be, provided for the purpose;

(b)a vessel shall not lie alongside a wharf unless it is properly moored and fastened so as to relieve, as much as may be possible, the wharf from the weight of the vessel;

(c)a vessel shall not be moored, anchored or lie in the vicinity of a wharf so as to create a second bank of vessels alongside the wharf;

(d)a vessel shall not be moored or fastened to, or remain alongside, any wharf except for the purpose of, and for the period actually required for, the loading or unloading of cargo;

(e)where the vessel, being a passenger vessel, has been brought alongside the steps provided at a wharf for the purpose of embarking or disembarking passengers, the master shall not permit the vessel to remain alongside those steps for any period longer than that necessary to complete the embarking or disembarking.

[Regulation 20 amended in Gazette 4 Jun 2010 p. 2464‑5.]

21.Anchoring etc. in port, masters’ duties as to

(1)The master of any vessel within a port — 

(a)shall anchor, moor or berth the vessel at the place appointed by the harbour master and in no other place;

(b)shall forthwith comply with any order of the harbour master requiring him or her — 

(i)to move the vessel from its place in the port to any other place in the port; or

(ii)to put down additional anchors or mooring lines to secure the vessel; or

(iii)to slacken any anchor chains or ropes or mooring lines securing the vessel.

(2)The master of a vessel shall not, except in unavoidable circumstances or with the permission of the harbour master, beach the vessel within any port and, where a vessel is beached in a port, the master or owner of the vessel shall cause the vessel to be removed in accordance with the directions of the harbour master.

[Regulation 21 amended in Gazette 4 Jun 2010 p. 2464‑6.]

22.Harbour master may order scuttling

Where the harbour master of a port is satisfied that a dangerous situation exists in a port and that — 

(a)the presence of a vessel within the port constitutes a danger to the safety of persons, vessels or valuable property within the port; and

(b)it is impossible to remove the vessel from the port or that the removal of the vessel would itself create a danger to the safety of persons, vessels or valuable property within the port,

he or she may order the master to forthwith scuttle the vessel and, if the master fails to comply forthwith with that order, the harbour master may by any means that he or she thinks fit scuttle the vessel.

[Regulation 22 amended in Gazette 4 Jun 2010 p. 2464‑7.]

23.Gangways, provision and use of

(1)The master of any vessel berthed at any wharf or jetty shall, unless the harbour master otherwise directs, at all times that the vessel is so berthed — 

(a)cause the vessel to be fitted with such gangways and manropes as in the opinion of the harbour master are necessary for the safety and convenience of the public; and

(b)place under each gangway a safety net or other device that is, in the opinion of the harbour master, suitable to prevent any person using the gangway from falling into the water; and

(c)cause to be displayed between sunset and sunrise lights that adequately light any gangway fitted to the vessel; and

(d)cause a watch to be kept upon the gangway.

(2)A person other than a member of the crew of the vessel or a person employed by the Department or any harbour authority shall not board or leave, or attempt to board or leave, a vessel before a gangway and net have been properly fitted and secured to the vessel.

(3)A person employed to control the use of any gangway shall not permit any person to leave or board, or to attempt to leave or board, a vessel before a gangway and net have been properly fitted and secured to the vessel.

[Regulation 23 amended in Gazette 4 Jun 2010 p. 2441 and 2464‑5.]

24.Watch keeping etc. requirements in port

(1)The master of any vessel exceeding 150 t gross registered tonnage shall, unless the CEO or the harbour master otherwise directs, cause a watchman to be kept on duty on the deck of the vessel between sunset and sunrise whenever the vessel is within a port.

(2)The master of a vessel exceeding 150 t gross registered tonnage shall, unless the CEO or the harbour master otherwise directs, cause one person to be on board the vessel between sunrise and sunset whenever the vessel is within a port.

(3)The master of any vessel of 150 t gross registered tonnage or less shall, if the harbour master directs, cause one person to be on board the vessel at any time that the vessel is within a port.

[Regulation 24 amended in Gazette 11 Aug 1992 p. 3975; 4 Jun 2010 p. 2463‑5.]

25.Naked lights etc. on vessels at wharves etc.

(1)Unless the consent in writing of the harbour master has been first obtained, the master of a vessel lying at any wharf shall not cause or permit the use of a flare‑up lamp or naked light in any hold of the vessel.

(2)The harbour master of a port may board or enter any ship or place within the port to search for any fire, or any flare‑up lamp or naked light that he or she suspects may be burning in a vessel or any other prohibited place in the port and may extinguish any such fire, flare‑up light or naked light that he or she may find and take any other action he or she thinks necessary for the safety of the port.

[Regulation 25 amended in Gazette 4 Jun 2010 p. 2464‑7.]

26.Fires on vessels, notification and extinguishment of

Where a fire occurs on any vessel within a port, the master of the vessel shall forthwith notify the harbour master and his or her assistants and every person on board or belonging to the vessel shall render the harbour master and his or her assistants such assistance towards extinguishing the fire and protecting other vessels as the harbour master may direct.

[Regulation 26 amended in Gazette 4 Jun 2010 p. 2464‑7.]

27.Waste disposal, masters’ duties as to

The master of any vessel lying alongside a wharf in any port shall not — 

(a)cause or permit any carcass of a dead animal or any refuse, debris or rubbish from the vessel to be cast or deposited on the wharf or in the water near the vessel; or

(b)cause or permit waste from any lavatory or any water to be discharged from the vessel upon any portion of the wharf or steps attached to the wharf; or

(c)unless the harbour master otherwise directs, remove the vessel from the wharf until all debris, rubbish and waste from the vessel has been removed from that portion of the wharf near which the vessel was lying.

[Regulation 27 amended in Gazette 4 Jun 2010 p. 2464‑5.]

28.Carcasses, debris etc., not to be thrown overboard

A person shall not throw a carcass of a dead animal or any stone or debris overboard from a vessel within any port.

29.Smoking in holds, prohibition of

A person shall not smoke in the hold of any vessel within a port, or in any other part of a vessel in relation to which the master of the vessel or the harbour master directs that smoking is prohibited.

[Regulation 29 amended in Gazette 4 Jun 2010 p. 2464‑5.]

Division 2 — Oil vessels

[Heading inserted in Gazette 4 Jun 2010 p. 2441.]

30.Terms used

In this Division, unless the contrary intention appears — 

inflammable liquid means petroleum, kerosene, and any oil, liquid or spirit derived wholly or in part from any petroleum, shale, schist, coal, peat, bitumen or any similar substance, and which has a true flashing point of less than 61°C and any other liquid which the Governor by proclamation in the Gazette declares to be an inflammable liquid for the purposes of these regulations;

oil vessel means any ship having on board or having lately had on board any inflammable liquid as cargo or part cargo, and includes a tank steamer, barge, or other vessel fitted to carry inflammable liquid.

[Regulation 30 amended in Gazette 15 Jun 1973 p. 2234; 4 Jun 2010 p. 2441.]

31.Flag required on oil vessel

The master of an oil vessel shall, at all times that the vessel is nearing or is at a wharf or jetty, display at the foremast head, or other conspicuous place clear of all obstructions so as to be clearly visible from any direction at a distance of at least 1 nautical mile from the vessel — 

(a)by day, the International Code flag “B”; and

(b)during the hours of darkness a red light so positioned as to be clear of all other lights on the vessel.

[Regulation 31 amended in Gazette 27 Jun 2003 p. 2523.]

32.Notice of intention to load or discharge inflammable liquid

The agents or master of any oil vessel intending to load or unload any quantity in excess of 180 L of inflammable liquid, shall, immediately after making fast to any wharf or jetty, give notice in writing to the harbour master of that intention, with particulars as to the quantity of inflammable liquid intended to be loaded or discharged.

[Regulation 32 amended in Gazette 15 Jun 1973 p. 2234; 4 Jun 2010 p. 2464‑5.]

33.Inflammable liquids not to be discharged or loaded without permission

The master of an oil vessel shall not permit inflammable liquids to be discharged or loaded without first obtaining the written permission of the harbour master.

[Regulation 33 amended in Gazette 4 Jun 2010 p. 2464‑5.]

34.Oil vessel to be moored as directed

The master of an oil vessel shall moor his or her vessel only at such places as the harbour master shall from time to time direct, and he or she shall not remove his or her vessel from the place as directed without the written permission of the harbour master.

[Regulation 34 amended in Gazette 4 Jun 2010 p. 2464‑7.]

35.Oil vessel with inflammable liquids below deck, duties of master of

The master of an oil vessel having on board inflammable liquids other than as deck cargo, and all other persons concerned, shall observe and perform the following provisions, namely:

(a)after the vessel is made fast to a wharf or jetty, all holds, tanks, and spaces containing inflammable liquid shall be kept securely closed and fastened down, except when opened for the purpose of discharging;

(b)an oil vessel with its cargo in bulk shall not be berthed until it is ready to load or discharge, and shall at all times continue and complete the loading or discharging with all possible despatch;

(c)no hold, tank, or space containing inflammable liquid in containers shall be opened until all trucks or other vehicles into which such goods are to be loaded are placed alongside the vessel and all is in readiness to commence the work;

(d)after the vessel is made fast to a wharf or jetty, all holds, tanks or spaces containing inflammable liquid shall be kept properly ventilated, to the satisfaction of the harbour master, to disperse all dangerous vapour that may be generated by the cargo or collected or lie in those places;

(e)an oil vessel loading or unloading inflammable liquid in casks, barrels, or other receptacles or containers shall work its cargo or carry out any other work on board only as directed by the harbour master;

(f)inflammable liquid contained in casks, barrels or other receptacles shall not be landed on any wharf or jetty from a vessel unless the casks, barrels or other receptacles are staunch and free from leakage and are of such strength and construction as to be not liable to break or to leak;

(g)where the harbour master so approves in writing, inflammable liquid in bulk may be unloaded after sunset into shore tanks, and may, in special circumstances, be loaded into tank ships, and the following conditions and such other conditions as the harbour master may in those circumstances impose, shall be complied with:

(a)unless circumstances render it unavoidable, pipelines and hoses shall not be coupled, uncoupled, or otherwise interfered with, except in daylight; and

(b)sufficient electric flood lighting of approved type shall be provided to give ample light for all operations;

(h)general cargo, other than deck cargo, shall not be unloaded after sunset on any day from any oil vessel without the approval in writing of the harbour master.

[Regulation 35 amended in Gazette 4 Jun 2010 p. 2464‑5.]

36.Oil vessel loading or unloading inflammable liquid, restricted access to etc.

The master of an oil vessel shall not permit or suffer any unauthorised person to be on board the vessel while loading or unloading of inflammable liquid is in process, and shall display and keep displayed at the main gangway while occupying any berth at a wharf or jetty a conspicuous notice to the following effect — 

NO ADMITTANCE.

OIL SHIP.

NO SMOKING ALLOWED.

37.Smoking etc. prohibited during loading or unloading inflammable liquid

During the loading or unloading of inflammable liquid no person shall smoke or heat any combustible matter, rivet or chip iron, or clean boilers or boiler tubes, or carry out other work likely to cause ignition on board the oil vessel or any other vessel lying alongside, and no person engaged in that loading or unloading shall carry matches or other appliances for providing or capable of providing ignition.

38.Oil vessel with tanks open, use of fires etc. on or near prohibited

(1)From the time when tanks of an oil vessel are opened for the purpose of discharging or loading inflammable liquid in bulk, and until such time as the operations of discharging or loading have been completed and the tanks have been thoroughly ventilated, no person shall use or permit or suffer to be used on the vessel, any fire, other than approved ship’s boilers, or light other than a safety lamp approved by the harbour master, either on board or within 30 m of the oil vessel, without the authority of the harbour master.

(2)Fires, lights, or electric apparatus, other than electric filament lamps or self contained lamps, heaters, cookers, or other types of safe apparatus so designed, constructed and maintained as to be incapable of igniting inflammable vapour, shall not be used on or near the wharf at which inflammable liquid is being discharged or loaded, or upon which inflammable liquid is lying.

[Regulation 38 amended in Gazette 27 Jun 2003 p. 2523; 4 Jun 2010 p. 2464‑5.]

39.Pumping inflammable liquid between oil vessel and tank, master’s duties as to

(1)Before any pumping operations of inflammable liquids are commenced, and during the continuance of those operations, the master shall cause — 

(a)a competent signalling staff to be in attendance both at the tank installation and on board the oil vessel; and

(b)telephonic communication between the same points to be established and maintained.

(2)A responsible person shall be detailed by the master for attendance on the wharf or jetty to superintend the opening and closing of valves and for patrol of the pipe line during the whole of the pumping operation, and pumping operations shall not be commenced before the correct position of all valves has been verified by the harbour master, and the harbour master is satisfied that all precautions necessary have and will be taken to prevent leakages.

[Regulation 39 amended in Gazette 4 Jun 2010 p. 2464‑5.]

40.Tanks to be closed during pumping; pumping to cease if leak occurs

(1)While pumping is in progress the lids, screw caps, or other removable coverings of the tanks shall be kept securely fastened or screwed down, except so far as may be necessary to enable discharge of the inflammable liquid to proceed, and where it is necessary to remove any lid, screw cap, or other coverings, safety wire gauzes shall immediately be properly fitted, or other effective measures immediately taken, by the master to prevent the ignition of the inflammable liquid or vapours.

(2)If any leakage occurs while inflammable liquid is being loaded onto or discharged from an oil vessel, the master of the oil vessel shall forthwith cause the loading or discharging to cease.

41.Loading or unloading inflammable liquids at night

Where permission has been granted by the harbour master in writing for the pumping of inflammable liquids into or out of an oil vessel to be carried out between sunset and sunrise, and an interruption or stoppage of loading or discharging takes place, the pumping shall not be recommenced before sunrise unless permission to do so has been granted by the harbour master in writing.

[Regulation 41 amended in Gazette 14 Feb 1975 p. 571; 4 Jun 2010 p. 2464‑5.]

42.Procedure on completing discharge of inflammable liquid

(1)When an oil vessel has completed discharging inflammable liquid in bulk, the connection or connections to the shore pipe line shall not be broken until the pipe line for its whole length has been completely and satisfactorily cleared of all inflammable liquid, and the harbour master approves the breaking of the pipe line.

(2)Immediately discharge of the inflammable liquid is suspended or completed, all lids, screw caps, or other coverings shall be replaced, securely fastened down and made gas tight.

[Regulation 42 amended in Gazette 4 Jun 2010 p. 2464‑5.]

43.No fires or ballasting while tanks are open

(1)The boiler or galley fires other than those required to produce steam for pumping of an oil vessel carrying inflammable liquid in bulk shall not be alight from the time when the holds or tanks are first opened for the purposes of discharge unless the written authority of the harbour master is first obtained.

(2)The master shall not allow any furnace other than that required to produce steam for pumping or any galley or other fires to be alight on board an oil vessel while the running of water for ballast or other purposes into any tank, receptacle, or enclosure on the oil vessel which has contained inflammable liquids is being carried out.

(3)No ballasting shall be carried out unless all tanks are sealed down as required by the harbour master and the rate of ballasting any tank shall be so reduced as required by the harbour master, and any directions given by him or her for other safety measures to be taken while ballasting shall be strictly observed.

(4)No ballasting shall be carried out by the master until he or she is so permitted in writing by the harbour master, who shall lay down such further conditions under which ballasting may be carried out as he or she may in the circumstances consider necessary.

[Regulation 43 amended in Gazette 4 Jun 2010 p. 2464‑7.]

44.Pipelines etc. to be oil and vapour tight

(1)All pipelines and connections thereto, flexible or otherwise, used between the oil vessel and the berth, shall at all times be kept in an oil and vapour tight condition and shall not leak.

(2)Inflammable liquid shall not be allowed to escape, either directly or indirectly, into any waters of the port.

45.Oil vessel to have steel hawsers to permit towing

The master of any oil vessel carrying inflammable liquid in bulk shall, immediately on the berthing of the vessel, have a steel wire hawser sufficiently strong to enable the oil vessel to be hauled away from the berth placed over the fore and aft ends of the oil vessel and made securely fast on board, and the hawser shall remain so placed while any inflammable liquid remains on board and until the oil vessel has been properly cleansed and ventilated.

46.Preventing fire, master of oil vessel’s duties as to

The master of an oil vessel shall take all due precautions for the prevention of accidents by fire in the discharge of inflammable liquids, and shall himself remain, or cause a responsible officer of the vessel to remain, on board the vessel, together with a sufficient crew, during the whole time of discharge, or while any inflammable liquid remains on board.

47.Harbour master may inspect oil vessel

The master of the oil vessel shall, when required so to do by the harbour master, do any act necessary to permit the harbour master to inspect and examine the inflammable liquid on board the vessel and any appliances to be used on the vessel for the purpose of ascertaining whether the provisions of these regulations are being observed and whether all other measures necessary for general safety are being taken.

[Regulation 47 amended in Gazette 4 Jun 2010 p. 2464‑6.]

48.Wharf to be barricaded while loading and unloading inflammable liquid

(1)The loading or unloading of inflammable liquid into or from an oil vessel berthed at a wharf or jetty shall not be commenced unless — 

(a)a barricade capable of preventing any unauthorised person having access to the vessel and pipe line hose connections has been erected on the wharf or jetty; and

(b)satisfactory provision has been made for watchmen to be in attendance to prevent the entrance of any unauthorised person and to take possession of matches from all persons passing through the barricade towards the oil vessel and to assist generally in the enforcement of these regulations.

(2)The erection and maintenance of the barricade and the employment or engagement of watchmen shall be carried out and arranged by or in accordance with the directions of and to the satisfaction of the harbour master.

(3)Any barricade erected on a wharf or jetty in pursuance of this regulation shall be so erected as to enclose an area of the wharf or jetty extending to a distance not less than 30 m past each end of the oil vessel and 30 m out from the vessel measured from the point on the side of the vessel closest to the wharf or jetty.

[Regulation 48 amended in Gazette 15 Jun 1973 p. 2234; 4 Jun 2010 p. 2464‑5.]

Part 8  Miscellaneous

[Heading inserted in Gazette 4 Jun 2010 p. 2442.]

49.Police officer’s powers to enforce these regulations

(1)A member of the Police Force may, where he or she considers it necessary for the due enforcement of these regulations, board any vessel within a port and search and inspect the vessel and any machinery, equipment, cargo or article in or on board the vessel.

(2)A person shall not interfere with or in any way obstruct a member of the Police Force acting in pursuance of subregulation (1).

[Regulation 49 amended in Gazette 4 Jun 2010 p. 2466‑7.]

50.Master responsible for compliance with regulations

Where by these regulations an act is required to be done, or forbidden to be done in relation to any vessel, the master of a vessel has, unless the contrary intention appears, the duty of causing to be done the act so required to be done, or of preventing from being done the act so forbidden to be done, as the case may be.

51.General offence and penalty

Every person who by act or omission contravenes any provision of these regulations commits an offence and, unless a penalty is expressly provided in relation to that offence, is liable to a fine of $2 000.

[Regulation 51 inserted in Gazette 3 Sep 1976 p. 3298; amended in Gazette 4 Jun 2010 p. 2442.]

Part 9  Transitional provisions

[Heading inserted in Gazette 4 Jun 2010 p. 2442.]

52.Shipping and Pilotage Amendment Act 2006, provisions for

(1)In this regulation —

amending Act means the Shipping and Pilotage Amendment Act 2006;

commencement day means the day on which the amending Act section 10 comes into operation 3;

existing port has the meaning given in section 10(3) of the Act.

(2)If the appointment of a person to be the harbour master of a port was in effect immediately before the commencement day —

(a)the appointment continues to have effect for a period of 2 years beginning on the commencement day, unless before then —

(i)the appointee resigns by written notice given to the Minister; or

(ii)the appointment is revoked by the Minister;

and

(b)during the period when the appointment continues to have effect under this subregulation, the appointee is to be taken to be a harbour master of the port appointed under section 4 of the Act.

(3)If the appointment of a person to be a pilot at a port was in effect immediately before the commencement day —

(a)the appointment continues to have effect for a period of 2 years beginning on the commencement day, unless before then —

(i)the appointee resigns by written notice given to the Minister; or

(ii)the appointment is revoked by the Minister;

and

(b)during the period when the appointment continues to have effect under this subregulation, the appointee is to be taken to hold a pilot’s licence for the port.

(4)If, immediately before the commencement day, a certificate was valid for use in respect of an existing port —

(a)the certificate is, subject to these regulations, valid for use in respect of a port of the same name; and

(b)the port of that name, instead of the existing port, is to be taken to be specified in the certificate.

[Regulation 52 inserted in Gazette 4 Jun 2010 p. 2442‑4.]

 

Schedule 1A — Declared ports

[r. 5A]

[Heading inserted in Gazette 4 Jun 2010 p. 2444.]

Division 1 — Name and limits of port

[Heading inserted in Gazette 4 Jun 2010 p. 2444.]

Name of port

Limits of port

Port of Barrow Island

The area of water and land described on Plan 1396 01 06B held by the Department, a copy of which is included for information purposes in Division 2.

Port of Cape Preston

The area of water and land described on Plan 1396 01 12C held by the Department, a copy of which is included for information purposes in Division 2.

Port of Carnarvon

The area of water and land described on Plan 1396 01 08B held by the Department, a copy of which is included for information purposes in Division 2.

Port of Derby

The area of water and land described on Plan 1396 01 03B held by the Department, a copy of which is included for information purposes in Division 2.

Port of Emu Point

The area of water and land described on Plan 1396 01 11A held by the Department, a copy of which is included for information purposes in Division 2.

Port of Jurien

The area of water and land described on Plan 1396 01 09A held by the Department, a copy of which is included for information purposes in Division 2.

Port of Onslow

The area of water and land described on Plan 1396 ‑ 01 ‑ 07 ‑ E held by the Department, a copy of which is included for information purposes in Division 2.

Port of Perth

The area of water and land described on Plan 1396 01 10B held by the Department, a copy of which is included for information purposes in Division 2.

Port of Varanus Island

The area of water and land described on Plan 1396 01 05B held by the Department, a copy of which is included for information purposes in Division 2.

Port Walcott

The area of water and land described on Plan 1396 01 04B held by the Department, a copy of which is included for information purposes in Division 2.

Port of Wyndham

The area of water and land described on Plan 1396 01 01B held by the Department, a copy of which is included for information purposes in Division 2.

Port of Yampi Sound

The area of water and land described on Plan 1396 01 02B held by the Department, a copy of which is included for information purposes in Division 2.

[Division 1 inserted in Gazette 4 Jun 2010 p. 2444‑6; amended in Gazette 30 Nov 2011 p. 4983; 5 Sep 2014 p. 3216.]

Division 2 — Copies of plans

[Heading inserted in Gazette 4 Jun 2010 p. 2447.]

X13960106B

X13960112C

X13960108B

X13960103B

X13960111A

X13960109A

X13960110B

X13960105B

X13960104B

X13960101B

 

X13960102B

[Division 2 inserted in Gazette 4 Jun 2010 p. 2447‑58; amended in Gazette 30 Nov 2011 p. 4984; 5 Sep 2014 p. 3217.]

Schedule 1  Signals indicating tides

[r. 5]

[Heading inserted in Gazette 4 Jun 2010 p. 2459.]

[Table 1 deleted in Gazette 4 Jun 2010 p. 2459.]

Table 2 — Tidal signals at Derby

1.Signals to be displayed, upon request from a post at the jetty at that Port —

Tide rising — by day, a black triangular shape; by night a green light.

Tide falling — by day, a black ball; by night a red light.

2.Signals to be displayed, upon request, at the Port of Derby for a flagstaff yard at the jetty at each Port — 

Depth of
water

Signal by day

Signal by night

4.2 m

A black ball over a black triangular shape over another black ball.

A red light over a green light over another red light.

4.6 m

A black ball over a black triangle shape over a black oblong shape.

A red light over a green light over a white light.

4.9 m

A black ball over a black triangular shape over another black triangular shape.

A red light over 2 green lights.

5.2 m

A black ball over a black oblong shape over another black ball.

A red light over a white light over another red light.

5.5 m

A black ball over a black oblong shape over a black triangular shape.

A red light over a white light over a green light.

5.8 m

A black ball over 2 black oblong shapes.

A red light over 2 white lights.

6.1 m

A black triangular shape.

A green light.

[Table 2 inserted in Gazette 15 Jun 1973 p. 2235; amended in Gazette 4 Jun 2010 p. 2459.]

Table 3 — Tidal signals at Point Samson

Signals to be displayed from a post at the jetty at that Port —

Tide rising — by day, a black triangle; by night, a green light.

Tide falling — by day, a black ball; by night, a red light.

Slack water, high or low — by day a black square; by night, a white light.

 

Schedule 2 — Signals to be displayed on vessels

[r. 6, 7 and 8]

[Heading inserted in Gazette 4 Jun 2010 p. 2459.]

Table 1 — General port signals

Purpose of signal

Signal to be displayed

Pilot required

By day — 

(1)International Code Flag “G”; or

(2)The Pilot Jack.

 

By night — 

(1)A Pyrotechnic Light, commonly known as a Blue Light, shown every 15 minutes; or

(2)A bright white light flashed at short or frequent intervals, just above the bulwarks of the vessel for a minute at a time; or

(3)International Code Signal “G” by flashing.

Medical assistance required

By day — International Code Flag “W”.

By night — International Code Signal “W” by flashing.

Tug required

By day — 

(1)International Code Flag “Z”; or

(2)International Code Flags “KF”.

 

Both day and night — Two blasts on whistle, one long and one short.

Explosives, dangerous cargo or inflammable liquids on board vessel not gas free

By day — International Code Flag “B” not less than 0.91 m 2 flown in a prominent position.

By night — A red light of such character as to be clearly visible all round the horizon at a distance of 1 nautical mile from the vessel and so positioned as to be clear of all other lights.

 

To communicate with shore station or port control

By day — 

(1) International Code Flag “K”; or

(2) International Code Flags “YP”.

 

Both signals to be followed by appropriate complement number from Table 1 of International Code.

 

By night — Morse flashing general call, i.e., A.A.A.A., etc.

[Table 1 inserted in Gazette 22 Feb 1972 p. 407‑8; amended in Gazette 15 Jun 1973 p. 2235; 27 Jun 2003 p. 2523.]

Table 2  Signals to be used by masters of dredging vessels

Purpose of signal

Signal

Dredging master requires any vessel approaching from seaward to keep the dredger on the starboard hand of that vessel and requires any vessel proceeding seaward to keep the dredger on the port hand of that vessel

By day — a black triangle on the yardarm on the side of the dredger to be passed.

By night — a green light over a red light on the yardarm on the side of the vessel to be passed.

In fog, mist, or heavy rain — the Morse sound signal letter “A” given at intervals of not more than 2 minutes on the dredger’s bell.

Dredging master requires any vessel approaching from seaward to keep the dredger on the port hand of the vessel and requires any vessel proceeding seaward to keep the dredger on the starboard hand of that vessel

By day — a red square on the yardarm on the side of the dredger to be passed.

By night — a red light over a green light on the side of the vessel to be passed.

In fog, mist, or heavy rain — the Morse sound signal letter “N” given at intervals of not more than 2 minutes on the dredger’s bell.

Dredger is blocking channel

By day — a green cone between 2 red balls, shown vertically at the masthead.

By night — a green light between 2 red lights shown vertically at the masthead.

In fog, mist or rain — the Morse sound letter signal “S” given at intervals of not more than 2 minutes on the dredger’s bell.

Vessel may pass on either side of the dredger

By day — a white flag at the masthead.

By night — a green light on both yardarms.

Dredger is unable to move, or is out of control

By day — a red flag on the masthead.

By night — a red light on both yardarms.

Self‑propelled dredger that is under way, and is unable to manoeuvre so as to give way to or avoid other vessels

By day — one red ball over one white diamond shape over one red ball, mounted vertically.

By night — one red light over one white light over one red light, the lights being mounted vertically and so positioned as to be clearly visible at a distance of at least 2 nautical miles.

The Morse sound signals referred to in this table shall be given as follows:

(a)a short ring — of 1½ seconds’ duration; and

(b)a long ring — of 4 seconds’ duration; and

(c)intervals between rings — of 1½ seconds’ duration.

[Table 2 inserted in Gazette 22 Feb 1972 p. 407‑8; amended in Gazette 27 Jun 2003 p. 2523.]

 

Schedule 3 — Fees and charges

[Heading inserted in Gazette 4 Jun 2010 p. 2460.]

Division 1 — Pilotage at Wyndham

[r. 15]

[Heading inserted in Gazette 24 Jun 2005 p. 2775.]

1.The charges for pilotage of vessels between Nicholls Point and berth at the Port of Wyndham are — 

Gross registered tonnage of vessel

Charges for both inward and outward pilotage

Up to 1 499

$7 731.20

1 500 — 3 000

$7 911.71

3 001 — 5 000

$8 782.14

5 001 — 10 000

$9 710.91

10 001 — 20 000

$11 652.63

20 001 — 30 000

$13 028.50

Exceeding 30 000

$14 263.94

2.The charges for pilotage of vessels within the Port of Wyndham are — 

(a)for pilotage of vessel being removed from a place in the port to another place in the port not being a removal to or to near the pilot boarding ground





$754.87

(b)for pilotage of vessel from a berth within the port to a place within that port at or near the pilot boarding ground or vice versa

50% of the applicable inward and outward pilotage charge

(c)where a pilot boat and crew are used in connection with a removal referred to in paragraph (a) a further charge, being launch hire —

 

(i)during normal hours

$430.88/hour

(ii)during overtime hours

$617.48/hour

(d)for pilotage at the Port of Wyndham where a radio watch is required out of hours

an amount equal to the cost of the pilotage service

[Division 1 inserted in Gazette 24 Jun 2005 p. 2775‑6; amended in Gazette 23 Jun 2006 p. 2210; 12 Jun 2007 p. 2724‑5; 1 Jul 2008 p. 3158‑9; 23 Jun 2009 p. 2484‑5; 30 Jun 2010 p. 3170; 21 Jun 2011 p. 2231; 15 Jun 2012 p. 2522; 28 Jun 2013 p. 2778; 27 Jun 2014 p. 2354.]

Division 2 — Conservancy dues

[r. 18]

[Heading inserted in Gazette 24 Jun 2005 p. 2776.]

1.

Conservancy dues payable in respect of any vessel, other than a fishing vessel or a vessel referred to in regulation 18(1)(a) to (j), on the day of first entry of that vessel —

 

 

(a)subject to paragraph (b), where the length of the vessel exclusive of bowsprit —

 

 

(i)does not exceed 6 m

$136.20

 

(ii)exceeds 6 m but does not exceed 10 m

$178.30

 

(iii)exceeds 10 m but does not exceed 20 m

$260.90

 

(iv)exceeds 20 m but does not exceed 30 m

$400.80

 

(v)exceeds 30 m but does not exceed 50 m

$611.60

 

(vi)exceeds 50 m but does not exceed 70 m

$955.80

 

(b)where vessel enters port for coal, fuel oil, supplies or orders, and not loading or unloading cargo or taking on more than 10 passengers



$121.20

2.

Conservancy dues payable in advance in respect of vessels engaged in pearl fishing north of North West Cape  — 

 

 

(a)Storeships, for each period of 12 months ending on 31 December, in any year


$13.64

 

(b)Other pearl fishing vessels, for each period of 6 months ending on 30 June and 31 December respectively, in any year



$6.37

3.

Conservancy dues payable in respect of the use by a fishing vessel of —

 

·the Emu Point Fishing Boat Harbour, Albany ; or

·the Fishing Boat Harbour , Carnarvon; or

·the Bandy Creek Small Boat Harbour , Esperance; or

·the Fishing Boat Harbour , Fremantle; or

·the Inner Harbour , Geraldton; or

·the Fishing Boat Harbour, Port Denison ,

 

for a period of 12 months ending on 30 June, where the length of the vessel exclusive of the bowsprit —

 

(a)does not exceed 6 m

$136.20

 

(b)exceeds 6 m but does not exceed 10 m

$178.30

 

(c)exceeds 10 m but does not exceed 20 m

$260.90

 

(d)exceeds 20 m but does not exceed 30 m

$400.80

 

(e)exceeds 30 m but does not exceed 50 m

$611.60

 

(f)exceeds 50 m

$955.80

[Division 2 inserted in Gazette 24 Jun 2005 p. 2776‑7; amended in Gazette 23 Jun 2006 p. 2210‑11; 12 Jun 2007 p. 2722; 1 Jul 2008 p. 3158‑9; 12 Jun 2009 p. 2118; 14 May 2010 p. 2017‑18; 30 Jun 2010 p. 3172‑3; 21 Jun 2011 p. 2243; 15 Jun 2012 p. 2527; 28 Jun 2013 p. 2769.]

 

Schedule 4 — Specified countries

[r. 18A(1)(a)]

[Heading inserted in Gazette 4 Jun 2010 p. 2460.]

A country within the Commonwealth of Nations

Belgium

Burma

Denmark

Finland

Federal Republic of Germany

Greece

Iceland

Israel

Netherlands

Norway

Portugal

Poland

Spain

Sweden

United States of America

Union of Soviet Socialist Republics

Yugoslavia .

[Fourth Schedule inserted in Gazette 28 Aug 1981 p. 3575.]

Schedule 5 — Specified documents

[r. 18A(1)(b)(ii)]

[Heading inserted in Gazette 4 Jun 2010 p. 2460.]

Country

Record

Britain

Certificate of British Registry.

British Tonnage Certificate.

Panama

Ship’s Register.

Certificado de Arqueo.

Liberia

Ship’s Register.

Certificate of Measurement.

Belgium

Ship’s Register.

Certificat de Jaugeage. (Tonnage Certificate)

Sweden

Ship’s Register.

Internationelt Matbriv. (International Tonnage Certificate)

Netherlands

Ship’s Register.

Internationale Meetbreef. (International Tonnage Certificate)

Italy

Ship’s Register.

Certificato di Stazza.

India

Certificate of Indian Registry.

Singapore

Certificate of Singapore Registry.

Germany

Amtlich Belaubigter.

Internationaler Schiffsmessbreef.

Indonesia

Ship’s Register — Certificate of Nationality.

Korea

Certificate of Vessel’s Nationality.

Japan

Certificate of Vessel’s Nationality.

Yugoslavia

Upisni List.

Argentina

Certificado de Matricula.

Greece

Certificate of Nationality.

Certificate of Measurement.

China

Certificate of Vessel’s Nationality.

Tonnage Certificate.

Russia

Ship’s Register.

[Fifth Schedule inserted in Gazette 28 Aug 1981 p. 3575.]

Schedule 6 — Forms

[Heading inserted in Gazette 4 Jun 2010 p. 2461.]

FORM 1

[r. 16H(1)]

PILOTAGE EXEMPTION CERTIFICATE

THIS IS TO CERTIFY THAT...............................................................................

whose signature appears below, has, in accordance with the provisions of the Shipping and Pilotage (Ports and Harbours) Regulations 1966, become entitled to navigate a vessel into and out of the pilotage areas specified in this Form without the services of a pilot and is EXEMPTED accordingly from the requirement to take on board a pilot.

This certificate is subject to the conditions specified in it.

Dated........................................................20........

.............................................................................................

EXECUTIVE DIRECTORSIGNATURE OF HOLDER

 

 

 

 

 

 

PERSONAL PARTICULARS

 

 

 

PASSPORT SIZE
PHOTOGRAPH

 

 

 

 

 

 

NAME IN FULL

ADDRESS

 

 

DATE OF BIRTH

PLACE

.........................................................................................

.........................................................................................

.........................................................................................

.........................................................................................

.........................................................................................

.......................................... COUNTRY..........................

If found this certificate should be returned to:

Department of Transport
Marine House
1 Essex Street
FREMANTLE WA 6160

PILOTAGE AREAS TO WHICH CERTIFICATE APPLIES

PILOTAGE AREA

CONDITIONS

NAME AND SIGNATURE

OF OFFICER

DATE

............................

.......................................

.....................................................

...................

............................

.......................................

.....................................................

...................

............................

.......................................

.....................................................

...................

............................

.......................................

.....................................................

...................

............................

.......................................

.....................................................

...................

............................

.......................................

.....................................................

...................

............................

.......................................

.....................................................

...................

............................

.......................................

.....................................................

...................

............................

.......................................

.....................................................

...................

............................

.......................................

.....................................................

...................

............................

.......................................

.....................................................

...................

............................

.......................................

.....................................................

...................

............................

.......................................

.....................................................

...................

............................

.......................................

.....................................................

...................

............................

.......................................

.....................................................

...................

............................

.......................................

.....................................................

...................

............................

.......................................

.....................................................

...................

............................

.......................................

.....................................................

...................

............................

.......................................

.....................................................

...................

............................

.......................................

.....................................................

...................

............................

.......................................

.....................................................

...................

[Form 1 inserted in Gazette 19 Jul 1991 p.3648‑9; amended in Gazette 4 Jun 2010 p. 2461.]

FORM 2

[r. 16J(1)]

PILOTAGE EXEMPTION RECORD BOOK

Pilotage Area Visits

Medical Certificates

Pilotage Area

Date &
Time In

Date &
Time Out

Name of Vessel

Pilot/Harbour Master Initials

Received

Next Due

 

 

 

 

 

 

 

 

 

 

 

 

 

 

 

 

 

 

 

 

 

 

 

[Form 2 inserted in Gazette 19 Jul 1991 p. 3648‑9; amended in Gazette 4 Jun 2010 p. 2462.]

dline

 

 

 

Notes

1This is a compilation of the Shipping and Pilotage (Ports and Harbours) Regulations 1966 and includes the amendments made by the other written laws referred to in the following table. The table also contains information about any reprint.

Compilation table

Citation

Gazettal

Commencement

Ports and Harbours Regulations 4

3 Feb 1966 p. 277‑92

3 Feb 1966

Untitled regulations

3 Oct 1967 p. 2592

3 Oct 1967

Untitled regulations

14 Jun 1971 p. 2146

15 Jun 1971 (see Gazette 14 Jun 1971 p. 2146)

Untitled regulations

24 Sep 1971 p. 3580‑1

1 Oct 1971

Untitled regulations

27 Oct 1971 p. 4155

27 Oct 1971

Untitled regulations

26 Nov 1971 p. 4915

26 Nov 1971

Untitled regulations

22 Feb 1972 p. 407‑8

22 Feb 1972

Untitled notice under the Metric Conversion Act 1972 s. 6

15 Jun 1973 p. 2234‑5

1 Jul 1973

Untitled regulations

14 Jun 1974 p. 1911

14 Jun 1974

Untitled regulations

14 Feb 1975 p. 571

14 Feb 1975

Untitled regulations

28 Feb 1975 p. 752‑3

28 Mar 1975 (see Gazette 28 Feb 1975 p. 752)

Untitled regulations

3 Sep 1976 p. 3298

3 Sep 1976

Untitled regulations

14 Oct 1977 p. 3704‑5

14 Nov 1977

Untitled regulations

2 Dec 1977 p. 4442

1 Jan 1978

Untitled regulations

10 Nov 1978 p. 4252

1 Dec 1978

Untitled regulations

10 Aug 1979 p. 2433

10 Aug 1979

Untitled regulations

20 Jun 1980 p. 1832‑4

1 Jul 1980 (see r. 2)

Ports and Harbours Amendment Regulations 1980

31 Dec 1980 p. 4437

1 Jan 1981 (see r. 2)

Ports and Harbours Amendment Regulations 1981

27 Mar 1981 p. 1077

27 Mar 1981

Ports and Harbours Amendment Regulations (No. 3) 1981

26 Jun 1981 p. 2417

1 Jul 1981 (see r. 2)

Ports and Harbours Amendment Regulations (No. 2) 1981

26 Jun 1981 p. 2417‑19

1 Jul 1981 (see r. 2)

Ports and Harbours Amendment Regulations (No. 4) 1981

28 Aug 1981 p. 3574‑5

1 Sep 1981 (see r. 2)

Ports and Harbours Amendment Regulations (No. 6) 1981

4 Sep 1981 p. 3859

4 Sep 1981

Ports and Harbours Amendment Regulations 1982

21 May 1982 p. 1579

21 May 1982

Ports and Harbours Amendment Regulations (No. 2) 1982

2 Jul 1982 p. 2361

2 Jul 1982

Ports and Harbours Amendment Regulations (No. 4) 1982

9 Jul 1982 p. 2512‑13

9 Jul 1982

Ports and Harbours Amendment Regulations (No. 3) 1982

13 Aug 1982 p. 3141

13 Aug 1982

Ports and Harbours Amendment Regulations (No. 5) 1982

10 Dec 1982 p. 4799

10 Dec 1982

Ports and Harbours Amendment Regulations 1983

5 Aug 1983 p. 2837‑9

5 Aug 1983

Ports and Harbours Amendment Regulations 1984

17 Feb 1984 p. 434‑5

17 Feb 1984

Ports and Harbours Amendment Regulations (No. 2) 1984

29 Jun 1984 p. 1760

29 Jun 1984

Ports and Harbours Amendment Regulations (No. 3) 1984

12 Oct 1984 p. 3270‑3
(erratum 26 Oct 1984 p. 3459)

12 Oct 1984

Ports and Harbours Amendment Regulations 1985

28 Jun 1985 p. 2318‑19

1 Jul 1985 (see r. 2)

Ports and Harbours Amendment Regulations (No. 2) 1985

30 Aug 1985 p. 3079‑80

2 Sep 1985 (see r. 2)

Ports and Harbours Amendment Regulations (No. 3) 1985

10 Jan 1986 p. 88

10 Jan 1986

Ports and Harbours Amendment Regulations 1986

8 Aug 1986 p. 2831‑3

8 Aug 1986

Ports and Harbours Amendment Regulations (No. 2) 1987

16 Oct 1987 p. 3896‑8

16 Oct 1987

Ports and Harbours Amendment Regulations 1987

23 Oct 1987 p. 3942‑3
(erratum 13 Nov 1987 p. 4146)

23 Oct 1987

Ports and Harbours Amendment Regulations 1988

12 Aug 1988 p. 2711‑12

12 Aug 1988

Ports and Harbours Amendment Regulations 1989

30 Jun 1989 p. 1920‑4

1 Jul 1989 (see r. 2)

Ports and Harbours Amendment Regulations (No. 2) 1989

27 Oct 1989 p. 3890

27 Oct 1989

Ports and Harbours Amendment Regulations (No. 2) 1990

1 Aug 1990 p. 3641‑3

1 Aug 1990 (see r. 2)

Ports and Harbours Amendment Regulations 1991

19 Jul 1991 p. 3644‑9

19 Jul 1991

Ports and Harbours Amendment Regulations (No. 2) 1991

26 Jul 1991 p. 3925‑8

1 Aug 1991 (see r. 2)

Ports and Harbours Amendment Regulations 1992

9 Jun 1992 p. 2380

9 Jun 1992

Ports and Harbours Amendment Regulations (No. 3) 1992

30 Jun 1992 p. 2901‑4

1 Jul 1992 (see r. 2)

Ports and Harbours Amendment Regulations (No. 2) 1992

11 Aug 1992 p. 3974‑5

11 Aug 1992

Ports and Harbours Amendment Regulations 1993

29 Jun 1993 p. 3181‑4

1 Jul 1993 (see r. 2)

Ports and Harbours Amendment Regulations (No. 2) 1993

6 Aug 1993 p. 4276

6 Aug 1993

Ports and Harbours Amendment Regulations (No. 3) 1993

31 Dec 1993 p. 6915

1 Jan 1994 (see r. 2)

Ports and Harbours Amendment Regulations 1994

14 Jun 1994 p. 2483‑5

1 Jul 1994 (see r. 2)

Ports and Harbours Amendment Regulations 1995

31 Mar 1995 p. 1175

1 Apr 1995 (see r. 2 and Gazette 31 Mar 1995 p. 1173‑4)

Ports and Harbours Amendment Regulations (No. 2) 1995

30 Jun 1995 p. 2692‑4

1 Jul 1995 (see r. 2)

Ports and Harbours Amendment Regulations 1996

25 Jun 1996 p. 2993‑5

1 Jul 1996 (see r. 2)

Ports and Harbours Amendment Regulations 1997

27 Jun 1997 p. 3148‑50

1 Jul 1997 (see r. 2)

Ports and Harbours Amendment Regulations 1998

12 May 1998 p. 2772‑4

1 Jul 1998 (see r. 2)

Ports and Harbours Amendment Regulations (No. 2) 1998

20 Oct 1998 p. 5792‑3

20 Oct 1998

Ports and Harbours Amendment Regulations 1999

22 Jun 1999 p. 2689‑90

1 Jul 1999 (see r. 2)

Ports and Harbours Amendment Regulations (No. 2) 1999

6 Aug 1999 p. 3732‑3

30 Sep 1999 (see r. 2)

Ports and Harbours Amendment Regulations 2000

20 Jun 2000 p. 3040‑3

1 Jul 2000 (see r. 2)

Ports and Harbours Amendment Regulations 2001

27 Jul 2001
p. 3802
‑3

1 Aug 2001 (see r. 2)

Ports and Harbours Amendment Regulations 2002

14 Jun 2002 p. 2320‑3

1 Jul 2002 (see r. 2)

Ports and Harbours Amendment Regulations 2003

27 Jun 2003 p. 2521‑5

1 Jul 2003 (see r. 2)

Reprint 1: The Ports and Harbours Regulations as at 1 Aug 2003 (includes amendments listed above)

Ports and Harbours Amendment Regulations 2004

25 Jun 2004 p. 2265‑9

1 Jul 2004 (see r. 2)

Ports and Harbours Amendment Regulations 2005

24 Jun 2005 p. 2773‑7

1 Jul 2005 (see r. 2)

Ports and Harbours Amendment Regulations 2006

23 Jun 2006 p. 2208‑11

1 Jul 2006 (see r. 2)

Ports and Harbours Amendment Regulations 2007

12 Jun 2007 p. 2721‑2

1 Jul 2007 (see r. 2)

Ports and Harbours Amendment Regulations (No. 2) 2007

12 Jun 2007 p. 2723‑5

1 Jul 2007 (see r. 2)

Reprint 2: The Ports and Harbours Regulations 1966 as at 26 Oct 2007 (includes amendments listed above)

Ports and Harbours Amendment Regulations 2008

1 Jul 2008 p. 3155‑6

r. 1 and 2: 1 Jul 2008 (see r. 2(a));
Regulations other than r. 1 and 2: 2 Jul 2008 (see r. 2(b))

Ports and Harbours Amendment Regulations (No. 3) 2008

1 Jul 2008 p. 3156‑9

1 Jul 2008 (see r. 2)

Ports and Harbours Amendment Regulations 2009

12 Jun 2009 p. 2117‑18

r. 1 and 2: 12 Jun 2009 (see r. 2(a));
Regulations other than r. 1 and 2: 1 Jul 2009 (see r. 2(b))

Ports and Harbours Amendment Regulations (No. 2) 2009

23 Jun 2009 p. 2483‑5

r. 1 and 2: 23 Jun 2009 (see r. 2(a));
Regulations other than r. 1 and 2: 1 Jul 2009 (see r. 2(b))

Reprint 3: The Ports and Harbours Regulations 1966 as at 2 Oct 2009 (includes amendments listed above)

Ports and Harbours Amendment Regulations (No. 2) 2010

14 May 2010 p. 2017‑18

r. 1 and 2: 14 May 2010 (see r. 2(a));
Regulations other than r. 1 and 2: 15 May 2010 (see r. 2(b))

Ports and Harbours Amendment Regulations 2010

4 Jun 2010 p. 2417‑67

r. 1 and 2: 4 Jun 2010 (see r. 2(a));
Regulations other than r. 1 and 2: 5 Jun 2010 (see r. 2(b) and
Gazette 4 Jun 2010 p. 2471)

Shipping and Pilotage (Ports and Harbours) Amendment Regulations (No. 3) 2010

30 Jun 2010 p. 3167‑70

r. 1 and 2: 30 Jun 2010 (see r. 2(a));
Regulations other than r. 1 and 2: 1 Jul 2010 (see r. 2(b)(i))

Shipping and Pilotage (Ports and Harbours) Amendment Regulations 2010

30 Jun 2010 p. 3171‑3

r. 1 and 2: 30 Jun 2010 (see r. 2(a));
Regulations other than r. 1 and 2: 1 Jul 2010 (see r. 2(b))

Shipping and Pilotage (Ports and Harbours) Amendment Regulations (No. 4) 2010

29 Oct 2010 p. 5331‑2

r. 1 and 2: 29 Oct 2010 (see r. 2(a));
Regulations other than r. 1 and 2: 30 Oct  2010 (see r. 2(b))

Reprint 4: The Shipping and Pilotage (Ports and Harbours) Regulations 1966 as at 18 Mar 2011 (includes amendments listed above)

Shipping and Pilotage (Ports and Harbours) Amendment Regulations (No. 2) 2011

21 Jun 2011 p. 2230-1

r. 1 and 2: 21 Jun 2011 (see r. 2(a));
Regulations other than r. 1 and 2: 1 Jul  2011 (see r. 2(b))

Shipping and Pilotage (Ports and Harbours) Amendment Regulations 2011

21 Jun 2011 p. 2242-3

r. 1 and 2: 21 Jun 2011 (see r. 2(a));
Regulations other than r. 1 and 2: 1 Jul  2011 (see r. 2(b))

Shipping and Pilotage (Ports and Harbours) Amendment Regulations (No. 4) 2011

30 Nov 2011 p. 4983‑4

r. 1 and 2: 30 Nov 2011 (see r. 2(a));
Regulations other than r. 1 and 2: 1 Dec 2011 (see r. 2(b))

Shipping and Pilotage (Ports and Harbours) Amendment Regulations (No. 2) 2012

15 Jun 2012 p. 2521-2

r. 1 and 2: 15 Jun 2012 (see r. 2(a));
Regulations other than r. 1 and 2: 1 Jul 2012 (see r. 2(b))

Shipping and Pilotage (Ports and Harbours) Amendment Regulations 2012

15 Jun 2012 p. 2526-7

r. 1 and 2: 15 Jun 2012 (see r. 2(a));
Regulations other than r. 1 and 2: 1 Jul 2012 (see r. 2(b))

Reprint 5: The Shipping and Pilotage (Ports and Harbours) Regulations 1966 as at 2 Nov 2012 (includes amendments listed above)

Shipping and Pilotage (Ports and Harbours) Amendment Regulations 2013

28 Jun 2013 p. 2768-9

r. 1 and 2: 28 Jun 2013 (see r. 2(a));
Regulations other than r. 1 and 2: 1 Jul 2013 (see r. 2(b))

Shipping and Pilotage (Ports and Harbours) Amendment Regulations (No. 2) 2013

28 Jun 2013 p. 2777-8

r. 1 and 2: 28 Jun 2013 (see r. 2(a));
Regulations other than r. 1 and 2: 1 Jul 2013 (see r. 2(b))

Shipping and Pilotage (Ports and Harbours) Amendment Regulations 2014

30 May 2014 p. 1687-8

r. 1 and 2: 30 May 2014 (see r. 2(a));
Regulations other than r. 1 and 2: 1 Jul 2014 (see r. 2(b))

Shipping and Pilotage (Ports and Harbours) Amendment Regulations (No. 2) 2014

27 Jun 2014 p. 2353-4

r. 1 and 2: 27 Jun 2014 (see r. 2(a));
Regulations other than r. 1 and 2: 1 Jul 2014 (see r. 2(b))

Shipping and Pilotage (Ports and Harbours) Amendment Regulations (No. 3) 2014

5 Sep 2014 p. 3216‑17

r. 1 and 2: 5 Sep 2014 (see r. 2(a));
Regulations other than r. 1 and 2: 6 Sep 2014 (see r. 2(b))

2Repealed by the Workplace and Other Legislation Amendment Act 1996 Sch. 19. That Act was then repealed by the Fair Work (Transitional Provisions and Consequential Amendments) Act 2009 (Cwlth.)

3The Shipping and Pilotage Amendment Act 2006 s. 10 commenced on 4 June 2010.

4Citation was initially the Ports and Harbours Regulations and was subsequently changed to the Ports and Harbours Regulations 1966 and then to the Shipping and Pilotage (Ports and Harbours) Regulations 1966 (see note under r. 1).

 

 

Defined terms

 

[This is a list of terms defined and the provisions where they are defined. The list is not part of the law.]

Defined termProvision(s)

amending Act52(1)

approved4

certificate4

certificate of health4

coasting vessel4

commencement day52(1)

commercial vessel18(2a)

exempt master4

existing port52(1)

gross registered tonnage4

inflammable liquid30

International Tonnage Certificate (1969)4

interstate vessel4

licensed pilot4

master4

oil vessel30

owner4

passenger4

reviewable decision9I(1)

subject port4

surveyor4

tonnage4

tons4

vessel4

vessel of war4

Western Australian Land Information Authority4

wharf4